
House Champagne
realizace 2024 – 2026
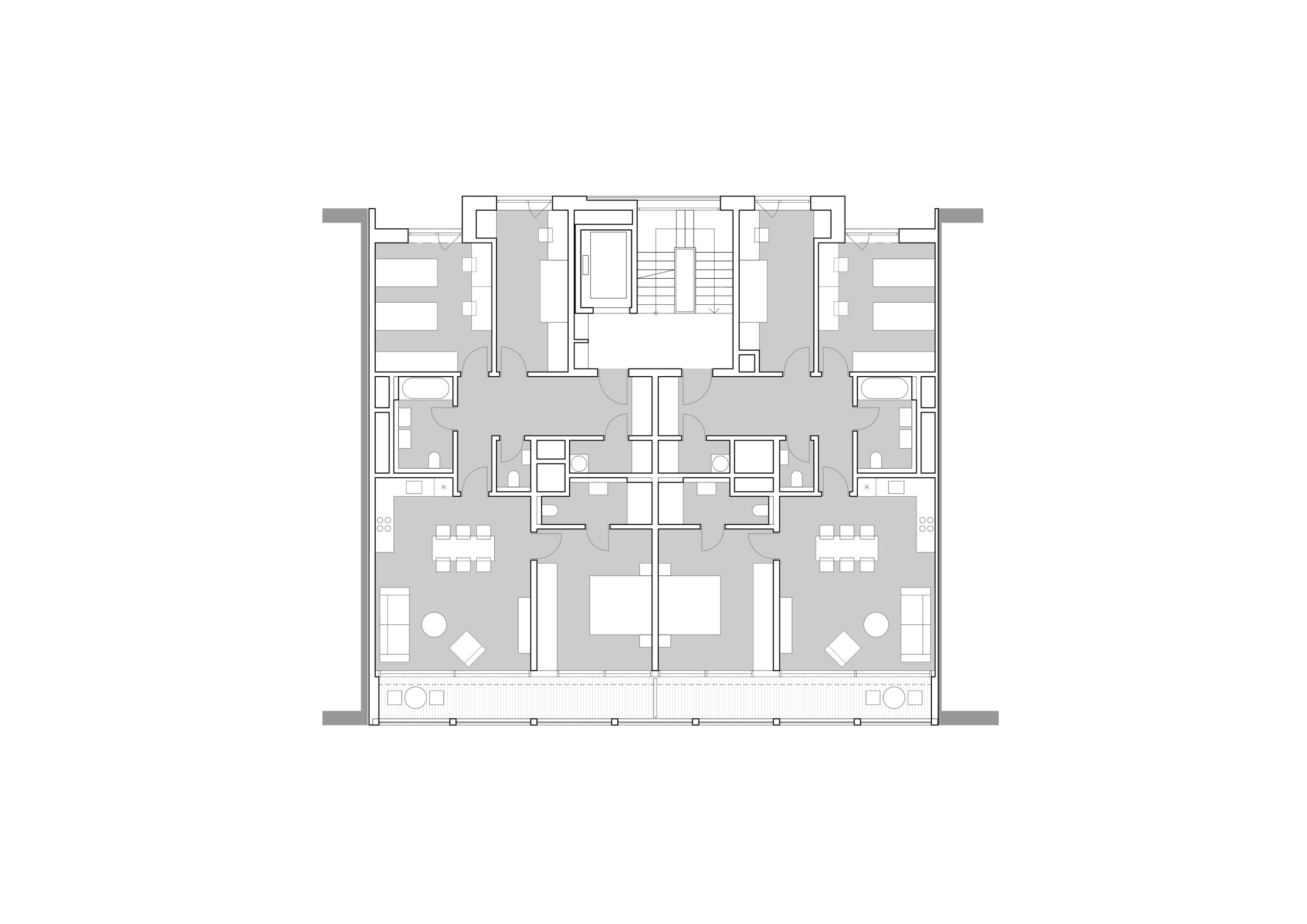
House Champagne je třetím bytovým domem, který navrhujeme v rámci projektu rozvoje lokality Nový Smíchov v blízkosti Smíchovského nádraží pod vedením Sekyra Group. Po temném House Noir a cihlově zbarveném Haus Rot přichází světlý dům, jehož fasáda kombinuje rámovou strukturu z prefabrikovaného pohledového betonu s hliníkovým obkladem v tónu champagne.
Dům je orientován na západ směrem k nové zklidněné pěší zóně, což umožňuje jeho maximální otevření a prosvětlení. Zajímavým prvkem bulváru, který spojuje dopravní uzel Na Knížecí s novým kampusem České spořitelny, je zachování stop po původních železničních kolejích jako připomínky průmyslové historie této lokality.
Prosklená fasáda přechází v exteriéru do velkorysých lodžií v celé šířce objektu, jejichž zábradlí je zdobeno jemným ornamentem. Tento detail dodává budově na lehkosti a eleganci, zatímco celkový design zůstává čistý a minimalistický.
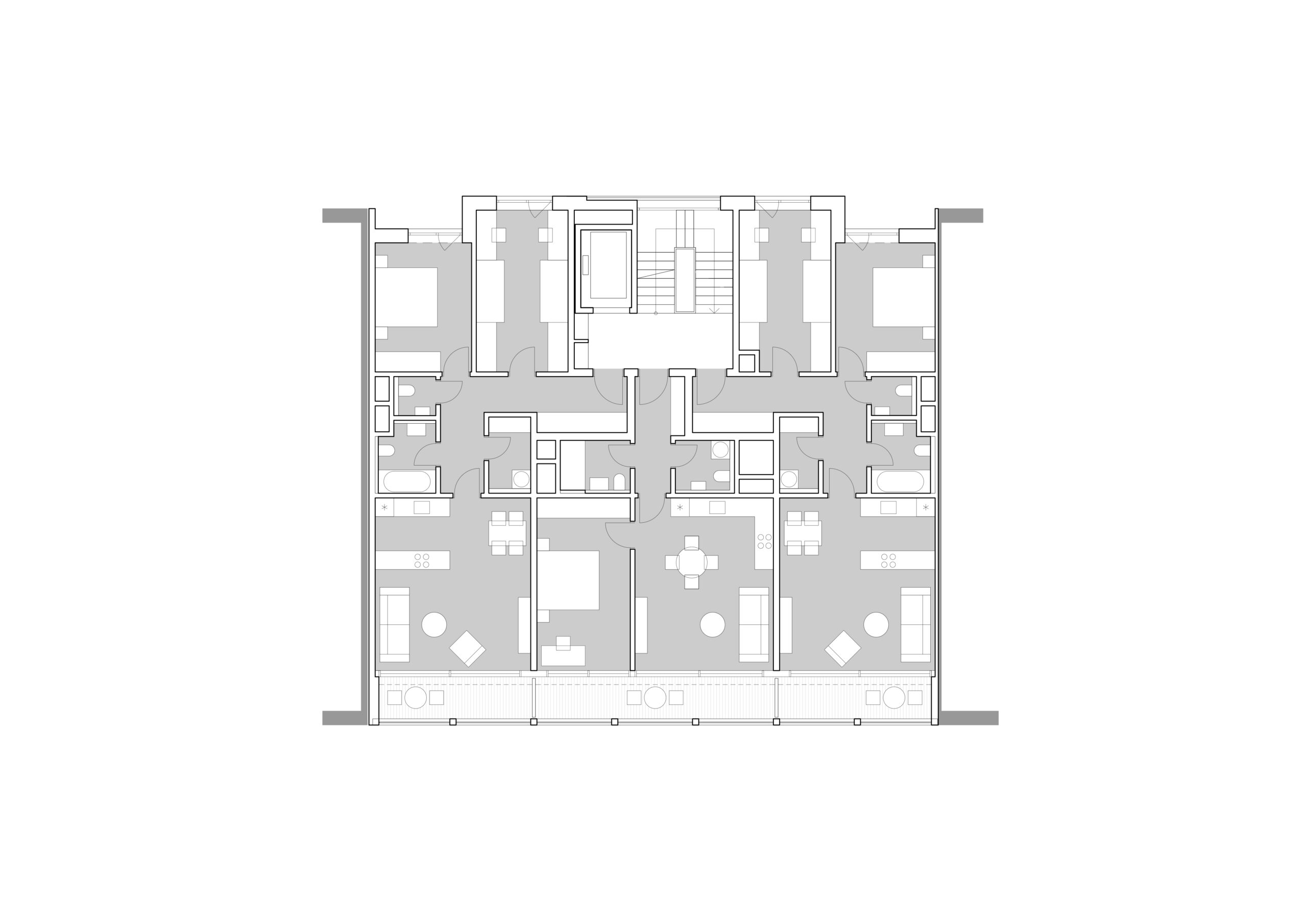
Penthouse v posledním patře zaujme svým půlkulatým tvarem a retro detaily, které kontrastují s geometrickými liniemi zbytku budovy. Nabízí velkorysý výhled na Vyšehrad, Pražský hrad a zelené kopce Malvazinek. Celý prostor je navržen jako jeden prostorný byt, který vytváří výrazný architektonický moment.
Střecha je zelená, navržená s důrazem na estetiku i praktičnost. Návrh zahrnuje i ty nejmenší detaily, včetně designu truhlíků, značení nebo přípravy na instalaci vířivek, přičemž každý element budovy je pečlivě zpracován tak, aby výsledný celek fungoval harmonicky. Dům zároveň splňuje přísné energetické normy.
Projekt je ukázkou současných trendů v městském bydlení, reaguje na potřebu kvalitních bytů v centru města a zároveň využívá proluk a volných parcel, jejichž zaplnění umožňují poměrně nově pražské stavební předpisy. Práce s prolukami je jednou z oblastí, na které se v edit! rádi zaměřujeme. A jak se zdá, tahle trojka bude stát už brzy – máme stavební povolení a v prosinci 2024 se tak posuneme do fáze výstavby.
vizualizace: Dousek-Záborský
Dům je orientován na západ směrem k nové zklidněné pěší zóně, což umožňuje jeho maximální otevření a prosvětlení. Zajímavým prvkem bulváru, který spojuje dopravní uzel Na Knížecí s novým kampusem České spořitelny, je zachování stop po původních železničních kolejích jako připomínky průmyslové historie této lokality.
Prosklená fasáda přechází v exteriéru do velkorysých lodžií v celé šířce objektu, jejichž zábradlí je zdobeno jemným ornamentem. Tento detail dodává budově na lehkosti a eleganci, zatímco celkový design zůstává čistý a minimalistický.
Penthouse v posledním patře zaujme svým půlkulatým tvarem a retro detaily, které kontrastují s geometrickými liniemi zbytku budovy. Nabízí velkorysý výhled na Vyšehrad, Pražský hrad a zelené kopce Malvazinek. Celý prostor je navržen jako jeden prostorný byt, který vytváří výrazný architektonický moment.
Střecha je zelená, navržená s důrazem na estetiku i praktičnost. Návrh zahrnuje i ty nejmenší detaily, včetně designu truhlíků, značení nebo přípravy na instalaci vířivek, přičemž každý element budovy je pečlivě zpracován tak, aby výsledný celek fungoval harmonicky. Dům zároveň splňuje přísné energetické normy.
Projekt je ukázkou současných trendů v městském bydlení, reaguje na potřebu kvalitních bytů v centru města a zároveň využívá proluk a volných parcel, jejichž zaplnění umožňují poměrně nově pražské stavební předpisy. Práce s prolukami je jednou z oblastí, na které se v edit! rádi zaměřujeme. A jak se zdá, tahle trojka bude stát už brzy – máme stavební povolení a v prosinci 2024 se tak posuneme do fáze výstavby.
vizualizace: Dousek-Záborský
×