
House Noir
realizace 2024 – 2026
Smíchovský House Noir je jedním ze tří bytových domů navržených naším studiem, které vznikají v rámci projektu rozvoje lokality v blízkosti Smíchovského nádraží pod vedením Sekyra Group.
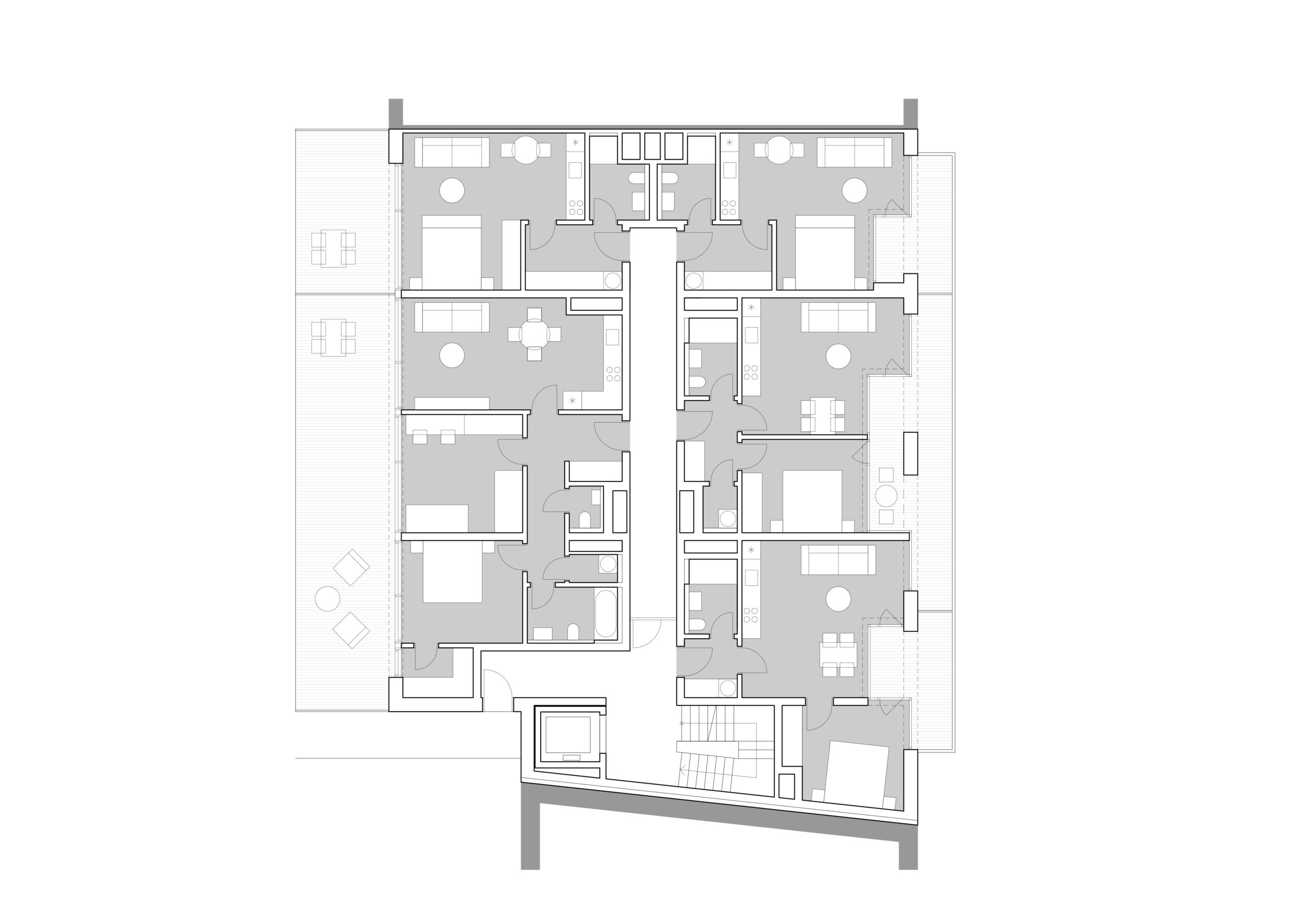
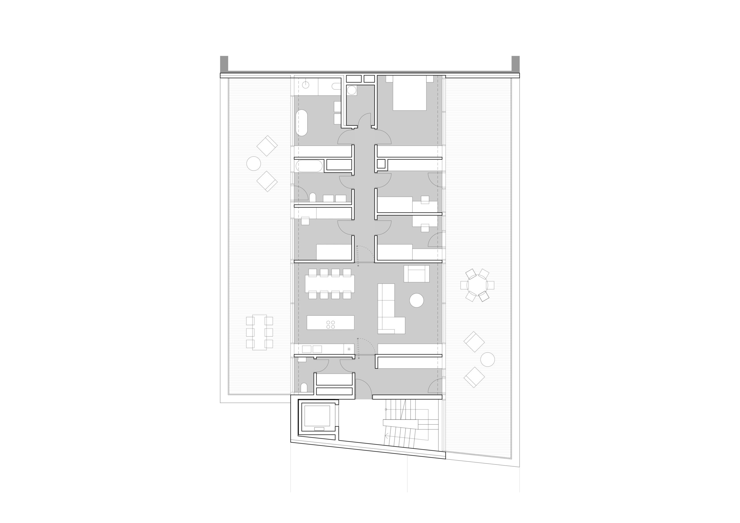
Dům s tmavou fasádou navazuje na jedinou původní stavbu, která zde zůstala zachována – činžovní dům z přelomu 19. a 20. století. Snaha o plynulé navázání domů má vliv na dispoziční řešení domu, původní stavba je totiž užší než plánovaná zástavba. Přechod tvoří vertikální komunikace, která kopíruje šířku staršího domu. Nový dům se následně vhodným způsobem rozšiřuje tak, aby odpovídal šířce další budoucí výstavby. Poslední patro zároveň po vzoru domů ze třicátých let částečně ustupuje, díky čemuž dům při pohledu z ulice působí nižší.
V přízemí jsou umístěny obchodní jednotky, které využívají strategické polohy na rušné Nádražní ulici. Každý byt orientovaný do ulice disponuje lodžií, přičemž zejména v prvním podlaží slouží tyto venkovní prostory jako přirozená ochrana před hlukem a oddělují obytný prostor od retailových ploch. Velkorysejší balkony jsou umístěny do klidného vnitrobloku. Také díky vyšší míře prosklení směrem do vnitrobloku a orientaci na západ působí byty světlým vzdušným dojmem.
Čistý design fasády domu v detailu podtrhují moderní hliníková ostění a navazující výplně otvorů s integrovaným systémem stínění. Ačkoliv blok na první pohled působí dojmem několika samostatných budov, technicky jde o jeden rozsáhlý objekt se společným zázemím a parkováním. Důležitou součástí celkového řešení je zpřístupnění pobytového vnitrobloku pro všechny residenty.
Na ambiciózním projektu zaplnění volných parcel v lokalitě podél ulice Nádražní spolupracují čtyři architektonická studia – A69, Chapman Taylor, LZ Architekti a edit!. Projekt se snaží o návrat k městské blokové struktuře 19. století, kterou lze vidět například na Vinohradech nebo Žižkově. Výstavba by měla být zahájena během podzimu 2024.
vizualizace: Dousek-Záborský
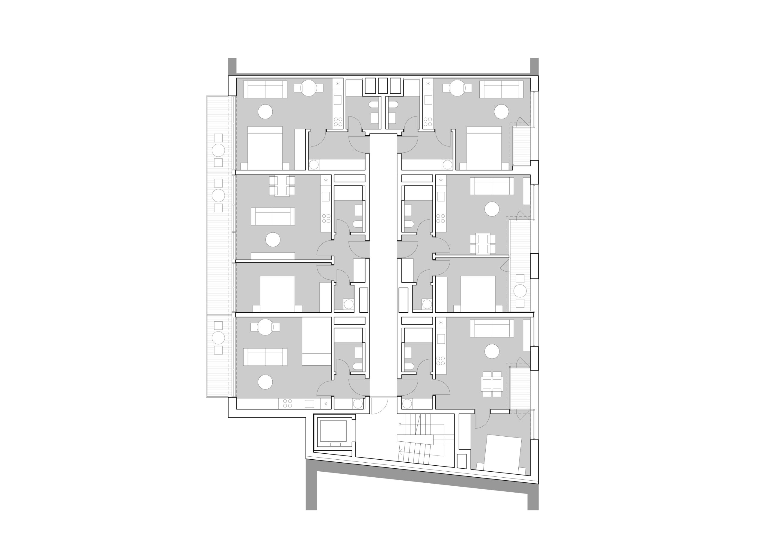
Dům s tmavou fasádou navazuje na jedinou původní stavbu, která zde zůstala zachována – činžovní dům z přelomu 19. a 20. století. Snaha o plynulé navázání domů má vliv na dispoziční řešení domu, původní stavba je totiž užší než plánovaná zástavba. Přechod tvoří vertikální komunikace, která kopíruje šířku staršího domu. Nový dům se následně vhodným způsobem rozšiřuje tak, aby odpovídal šířce další budoucí výstavby. Poslední patro zároveň po vzoru domů ze třicátých let částečně ustupuje, díky čemuž dům při pohledu z ulice působí nižší.
V přízemí jsou umístěny obchodní jednotky, které využívají strategické polohy na rušné Nádražní ulici. Každý byt orientovaný do ulice disponuje lodžií, přičemž zejména v prvním podlaží slouží tyto venkovní prostory jako přirozená ochrana před hlukem a oddělují obytný prostor od retailových ploch. Velkorysejší balkony jsou umístěny do klidného vnitrobloku. Také díky vyšší míře prosklení směrem do vnitrobloku a orientaci na západ působí byty světlým vzdušným dojmem.
Čistý design fasády domu v detailu podtrhují moderní hliníková ostění a navazující výplně otvorů s integrovaným systémem stínění. Ačkoliv blok na první pohled působí dojmem několika samostatných budov, technicky jde o jeden rozsáhlý objekt se společným zázemím a parkováním. Důležitou součástí celkového řešení je zpřístupnění pobytového vnitrobloku pro všechny residenty.
Na ambiciózním projektu zaplnění volných parcel v lokalitě podél ulice Nádražní spolupracují čtyři architektonická studia – A69, Chapman Taylor, LZ Architekti a edit!. Projekt se snaží o návrat k městské blokové struktuře 19. století, kterou lze vidět například na Vinohradech nebo Žižkově. Výstavba by měla být zahájena během podzimu 2024.
vizualizace: Dousek-Záborský
×