
Iconik
realizace 2021 – 2023
Devítipodlažní bytový dům Iconik je umístěn v Karlíně na jedné z posledních proluk vzniklých následkem tisícileté povodně. Parcela je situována na hlavní třídě, která stejně jako celá čtvrť, jež patří mezi jednu z nejžádanějších pražských lokalit, prošla v posledních dvou dekádách zásadní architektonickou i sociální proměnou. Bohatou historii dříve industriální čtvrti navrhovaný objekt reflektuje svým výrazem, a hmotovým pojetím se opírá jak o historickou parcelaci zastavované proluky, tak o pro Karlín typické nepravidelné výškové uspořádání korunních říms.
Dům je vizuálně rozdělen na dvě hmoty vycházející z původního dělení pozemku a ze struktury městského bloku se střídajícími se výškami střech a říms – v tomto případě jde o užší hmotu o devíti nadzemních podlažích a nižší a širší osmipodlažní. Objemy dále odlišuje rastr oken a lodžií.
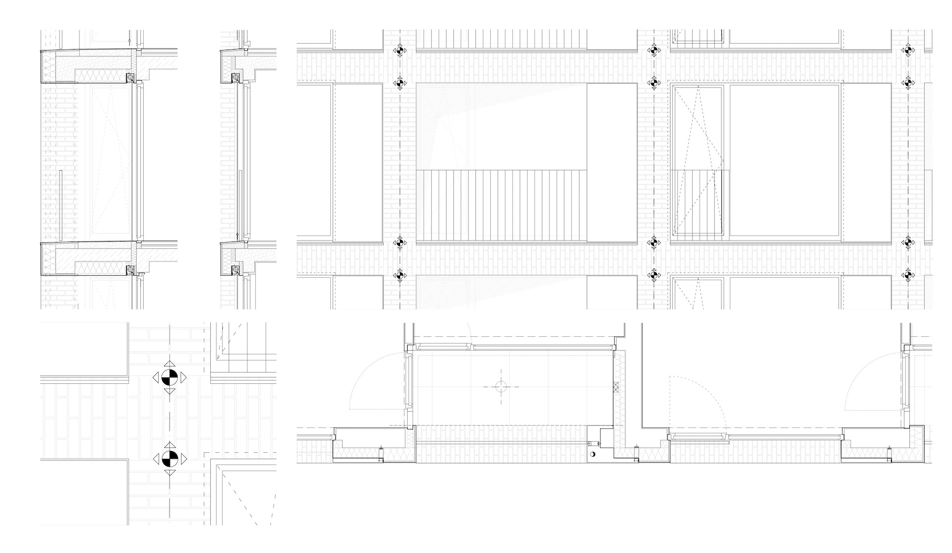
Budova má dvě hlavní fasády. První je orientovaná do ulice a druhá do vnitrobloku. Uliční fasáda tvoří identitu budovy samotné, kdy keramický obklad s dekorem ve dvou odstínech odkazuje na tradiční materialitu nejen fasád bytových domů z 30. let minulého století, ale také místních industriálních objektů, které vlivem mohutného rozvoje z lokality již téměř vymizely.
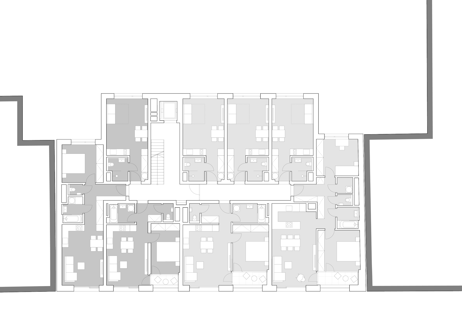
Vnitřní uspořádání domu je pro dnešní městský bytový dům typické. Ve třech podzemních podlažích se nachází parking, technické zázemí celého domu a sklepy. V parteru jsou umístěné dvě komerční jednotky připravené na provoz restaurace nebo bistra a samotná vstupní hala s přístupem ke všem 48 bytům o dispozicích 1+kk až 4+kk, situovaným ve druhém až devátém nadzemním podlaží. Většina bytů 2+kk a větších má vlastní lodžii nebo terasu přístupnou z obývacího pokoje i z ložnice. Prémiové byty větších dispozic s celoprosklenými obytnými místnostmi se nacházejí v horních podlažích domu. Z jejich prostorných teras se naskýtá pohled na zelený Vítkov i střešní krajinu Karlína.
foto: BoysPlayNice
Dům je vizuálně rozdělen na dvě hmoty vycházející z původního dělení pozemku a ze struktury městského bloku se střídajícími se výškami střech a říms – v tomto případě jde o užší hmotu o devíti nadzemních podlažích a nižší a širší osmipodlažní. Objemy dále odlišuje rastr oken a lodžií.
Budova má dvě hlavní fasády. První je orientovaná do ulice a druhá do vnitrobloku. Uliční fasáda tvoří identitu budovy samotné, kdy keramický obklad s dekorem ve dvou odstínech odkazuje na tradiční materialitu nejen fasád bytových domů z 30. let minulého století, ale také místních industriálních objektů, které vlivem mohutného rozvoje z lokality již téměř vymizely.
Vnitřní uspořádání domu je pro dnešní městský bytový dům typické. Ve třech podzemních podlažích se nachází parking, technické zázemí celého domu a sklepy. V parteru jsou umístěné dvě komerční jednotky připravené na provoz restaurace nebo bistra a samotná vstupní hala s přístupem ke všem 48 bytům o dispozicích 1+kk až 4+kk, situovaným ve druhém až devátém nadzemním podlaží. Většina bytů 2+kk a větších má vlastní lodžii nebo terasu přístupnou z obývacího pokoje i z ložnice. Prémiové byty větších dispozic s celoprosklenými obytnými místnostmi se nacházejí v horních podlažích domu. Z jejich prostorných teras se naskýtá pohled na zelený Vítkov i střešní krajinu Karlína.
foto: BoysPlayNice
×