
K57 – bytový důmv Berlíně
studie 2013
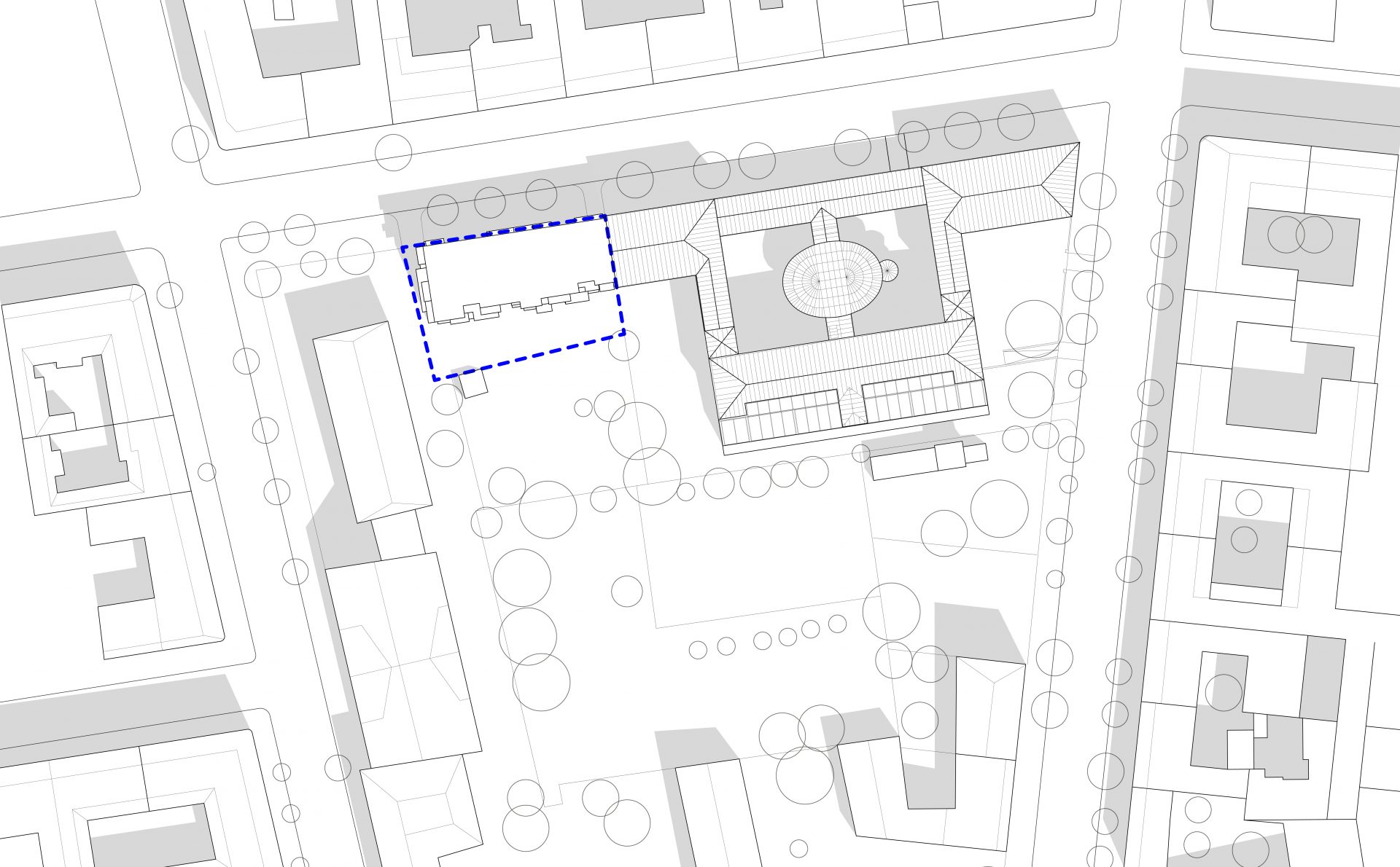
Nový bytový dům by měl nahradit panelovou stavbu z osmdesátek s velmi specifickou polohou — svou východní fasádou přímo navazuje na chráněný komplex Humboldt – monumentální cihlovou stavbu bývalé trafostanice od architekta Hanse Mullera z roku 1926. Náš návrh se snaží vnést do tohoto propojení vyvážený kontrast a se stávající lokální dominantou nesoutěžit. Nová budova s abstraktní fasádou neustále proměnlivou díky stínům a odrazům se může stát mladou nevěstou pro starý a statický Humboldt.
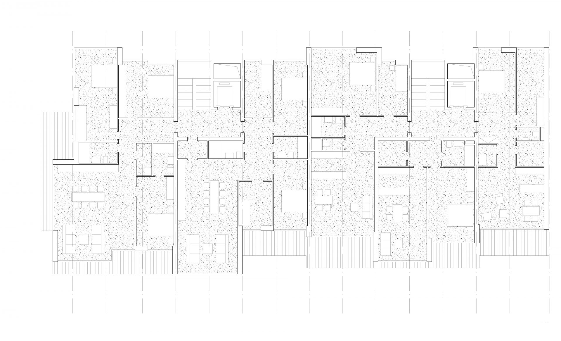
Severní fasáda navrženého domu drží uliční linii, na západě doplňuje chybějící nároží. Nová hmota domu využívá maximálně jižní orientace směrem do dvora a výhledů na centrum města. Prolamování fasády vytváří atraktivnější dispozice bytů v propojení s jejich venkovními plochami, které tak navíc získávají více soukromí. To domu v oblíbené rezidenční čtvrti Prezlauerberg přidává na jedinečnosti.
Spolupráce: Lenka Míková
Severní fasáda navrženého domu drží uliční linii, na západě doplňuje chybějící nároží. Nová hmota domu využívá maximálně jižní orientace směrem do dvora a výhledů na centrum města. Prolamování fasády vytváří atraktivnější dispozice bytů v propojení s jejich venkovními plochami, které tak navíc získávají více soukromí. To domu v oblíbené rezidenční čtvrti Prezlauerberg přidává na jedinečnosti.
Spolupráce: Lenka Míková
×