
Rohan City
studie 2024
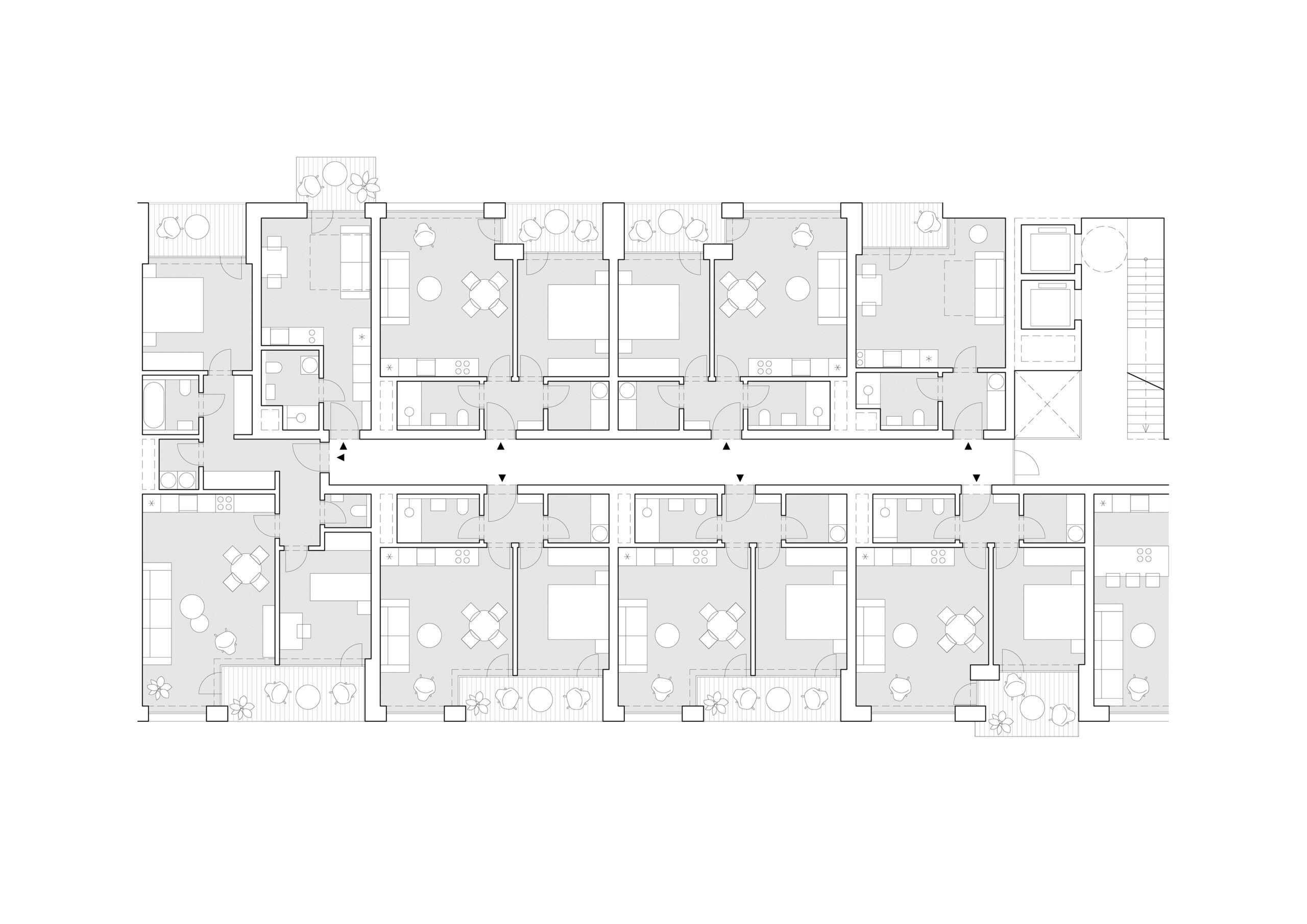
Urbanistický návrh bloku D VI. v rámci projektu Rohan City propojuje moderní výstavbu s důrazem na kvalitní veřejný prostor a efektivní využití pozemku. Jedná se o architektonicky promyšlený soubor šesti propojených sekcí, které společně vytvářejí harmonické městské bydlení s přirozeným napojením na okolní prostředí nově vznikající čtvrti. Každá část objektu má svou vlastní identitu a specifický charakter, přesto projekt působí soudržně a elegantně.
Blok reflektuje měřítko okolní výstavby a maximálně využívá potenciál území. Dvě dominantní věže se otevírají směrem k řece, přičemž ve věžích se nacházejí prostorné byty s velkorysými lodžiemi a terasami, které umožňují nerušené výhledy na Vltavu. Nižší části domu, přirozeně navazující na městskou strukturu, nabízí menší byty s balkony či předzahrádkami orientovanými do klidného vnitrobloku.
Vnitroblok není uzavřený, ale přechází v park. Obyvatelé zde naleznou zelené odpočinkové zóny, ale i prostory pro setkávání a volnočasové aktivity. Tento koncept čerpá inspiraci ze severského přístupu k bydlení a přispívá k jedinečnému charakteru celého projektu Rohan City. Napojení na nábřežní promenádu dále posiluje přirozené zakotvení projektu v městském kontextu.
Fasády jednotlivých částí bloku odrážejí jejich polohu a funkci. Směrem do ulice jsou navrženy s důrazem na reprezentativní výraz – kombinují velkoformátová okna, ocelové detaily a precizně zpracované materiály, které propůjčují budově moderní a nadčasový charakter. Horizontální římsy a keramické obklady dodávají fasádám rytmus a hloubku, každá část má zároveň vlastní materiálové a barevné zpracování a blok tak působí jako soubor několika budov. Směrem do vnitrobloku jsou fasády řešeny ekonomičtějšími jemnými omítkami.
Celkové uspořádání vytváří harmonickou symbiózu mezi obytnou zástavbou, okolními parky a veřejnou vybaveností. Blok sousedí se základní školou, což zvyšuje komfort pro rodiny s dětmi. Architektonický návrh zohledňuje princip patnáctiminutového města, kdy obyvatelé mají důležité služby v docházkové vzdálenosti. Spojení soukromých a veřejných prostor, udržitelný přístup k urbanismu a kvalitní architektura činí z této lokality atraktivní místo k životu.
vizualizace: Frams
Blok reflektuje měřítko okolní výstavby a maximálně využívá potenciál území. Dvě dominantní věže se otevírají směrem k řece, přičemž ve věžích se nacházejí prostorné byty s velkorysými lodžiemi a terasami, které umožňují nerušené výhledy na Vltavu. Nižší části domu, přirozeně navazující na městskou strukturu, nabízí menší byty s balkony či předzahrádkami orientovanými do klidného vnitrobloku.
Vnitroblok není uzavřený, ale přechází v park. Obyvatelé zde naleznou zelené odpočinkové zóny, ale i prostory pro setkávání a volnočasové aktivity. Tento koncept čerpá inspiraci ze severského přístupu k bydlení a přispívá k jedinečnému charakteru celého projektu Rohan City. Napojení na nábřežní promenádu dále posiluje přirozené zakotvení projektu v městském kontextu.
Fasády jednotlivých částí bloku odrážejí jejich polohu a funkci. Směrem do ulice jsou navrženy s důrazem na reprezentativní výraz – kombinují velkoformátová okna, ocelové detaily a precizně zpracované materiály, které propůjčují budově moderní a nadčasový charakter. Horizontální římsy a keramické obklady dodávají fasádám rytmus a hloubku, každá část má zároveň vlastní materiálové a barevné zpracování a blok tak působí jako soubor několika budov. Směrem do vnitrobloku jsou fasády řešeny ekonomičtějšími jemnými omítkami.
Celkové uspořádání vytváří harmonickou symbiózu mezi obytnou zástavbou, okolními parky a veřejnou vybaveností. Blok sousedí se základní školou, což zvyšuje komfort pro rodiny s dětmi. Architektonický návrh zohledňuje princip patnáctiminutového města, kdy obyvatelé mají důležité služby v docházkové vzdálenosti. Spojení soukromých a veřejných prostor, udržitelný přístup k urbanismu a kvalitní architektura činí z této lokality atraktivní místo k životu.
vizualizace: Frams
×