
Near & Dear Hub
realisation 2022
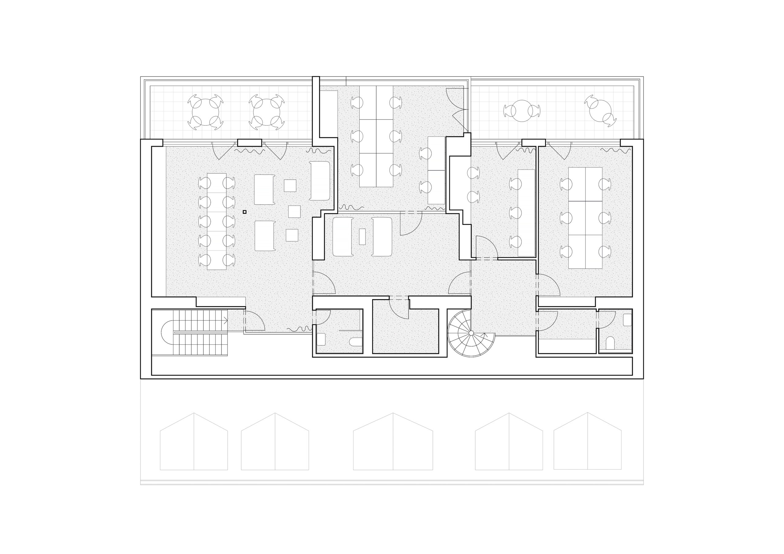
The client decided to create a new base for his hub and found the ideal location in an apartment building near Náměstí Míru in Vinohrady district. It was a pleasure for us to fulfill the client’s brief, but also a challenge as the starting point was a gloomy attic and basement rooms to be turned into a pleasant and contemporary work place for the young team to experience.
We replaced the original wooden and cumbersome partitions with new ones made of steel and glass, which allowed to open up the whole loft, brighten it and connect it into one functional space. One of the client’s requirements was to embrace the principle of sustainability and seize the moment when waste becomes a resource for a new product. These recycled products stand out clearly and significantly in the interior. wildly patterned desk tops made from recycled plastics and colourful curtains made from recycled textiles are used throughout the community office spaces, separating open spaces when needed, while helping to improve acoustics. Work surfaces with oak tops are complemented by colourful seatings, metal cabinets and wooden modular wall panels. The colour palette of the chosen shades and the carefully selected artwork by painter David Krňanský, combined with the conservative line of the fixed furnishings, create a pleasing asymmetric unity. The focal point of the loft is the lounge with its loose furniture, stainless steel kitchen and outdoor terrace. This space combines functions such as relaxation, refreshments, informal meetings and a temporary workplace.
A separate part of the interior is the basement, which houses the production and editing studios. Both the professional and technical rooms make use of exposed brick vaults and allow technical elements of air conditioning. All of the spaces here are minimized to a basic black and white palette, that allows the rooms to be filled with all shades of creativity with every new project.
We replaced the original wooden and cumbersome partitions with new ones made of steel and glass, which allowed to open up the whole loft, brighten it and connect it into one functional space. One of the client’s requirements was to embrace the principle of sustainability and seize the moment when waste becomes a resource for a new product. These recycled products stand out clearly and significantly in the interior. wildly patterned desk tops made from recycled plastics and colourful curtains made from recycled textiles are used throughout the community office spaces, separating open spaces when needed, while helping to improve acoustics. Work surfaces with oak tops are complemented by colourful seatings, metal cabinets and wooden modular wall panels. The colour palette of the chosen shades and the carefully selected artwork by painter David Krňanský, combined with the conservative line of the fixed furnishings, create a pleasing asymmetric unity. The focal point of the loft is the lounge with its loose furniture, stainless steel kitchen and outdoor terrace. This space combines functions such as relaxation, refreshments, informal meetings and a temporary workplace.
A separate part of the interior is the basement, which houses the production and editing studios. Both the professional and technical rooms make use of exposed brick vaults and allow technical elements of air conditioning. All of the spaces here are minimized to a basic black and white palette, that allows the rooms to be filled with all shades of creativity with every new project.
×