
House in Čakovice
realisation 2025
A family house in Prague’s Čakovice district combines minimalist form with a clear spatial layout.
Its simple cubic volume, defined by a flat roof and light beige textured plaster, references the tradition of Czech functionalism while responding to the needs of a contemporary family. The house is positioned along the side street, leaving the maximum amount of space for a garden with a swimming pool.
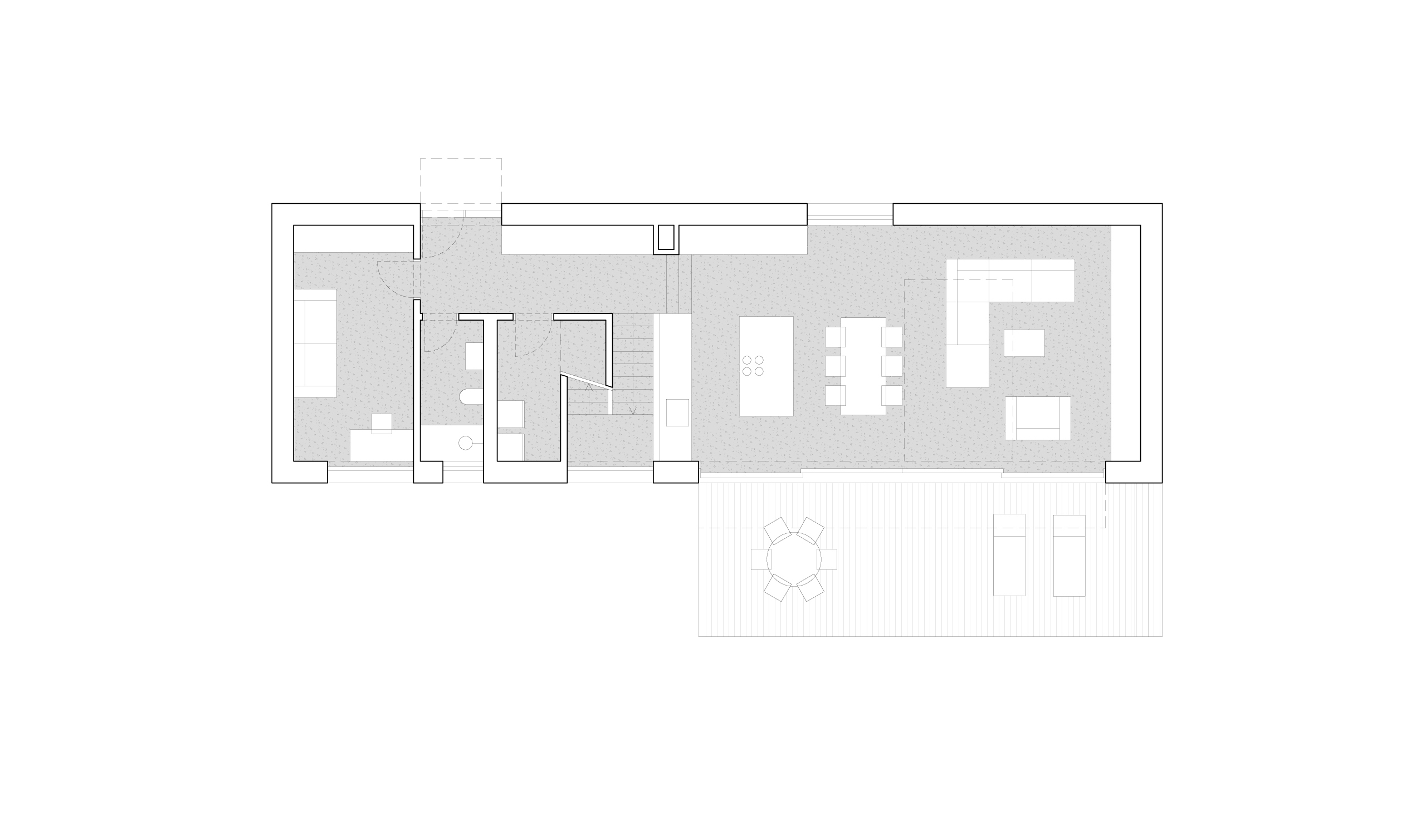
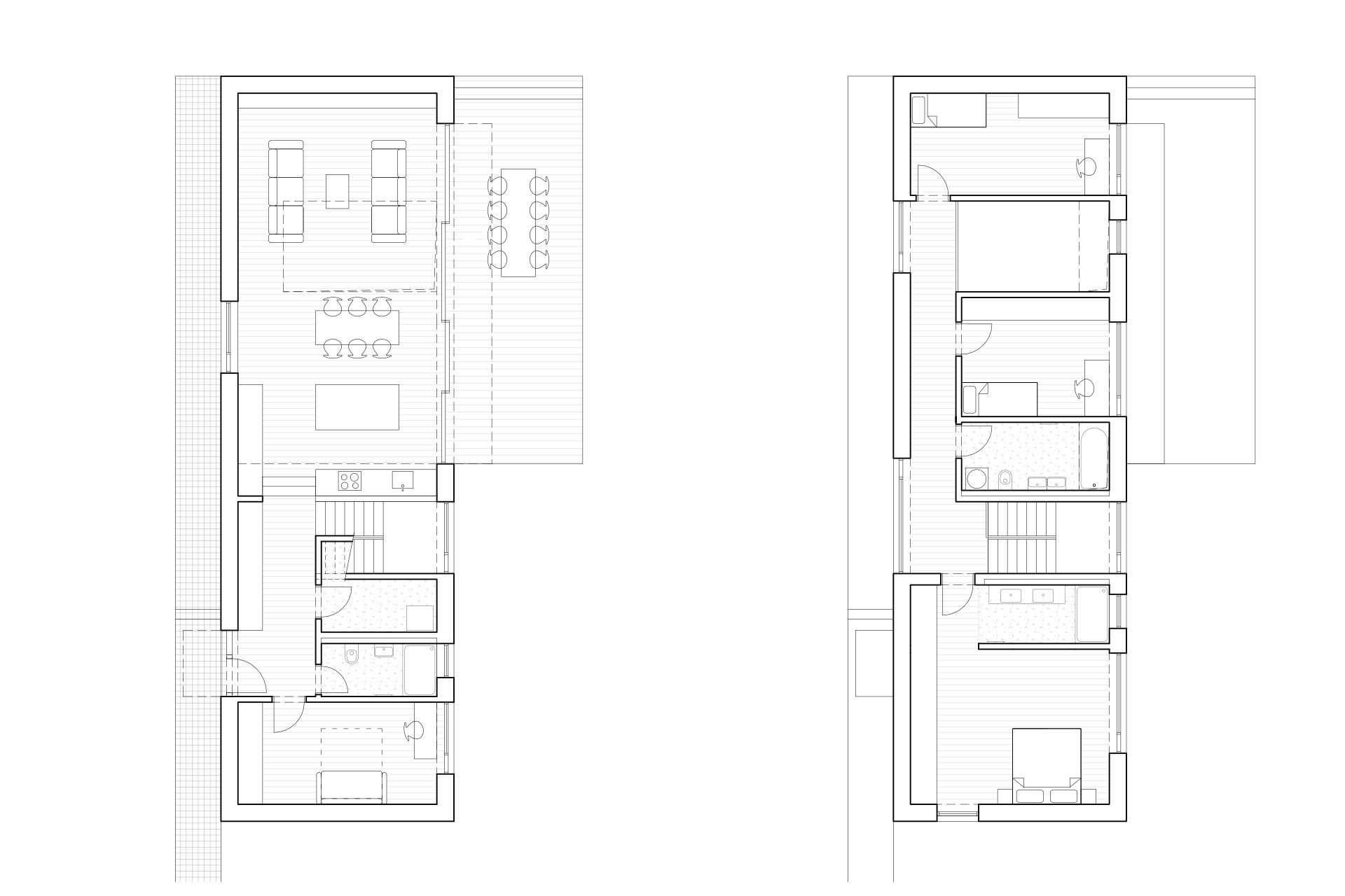
The floor plan is arranged across two levels. The ground floor contains a living room, study, and bathroom, while the upper floor accommodates two children’s bedrooms, a master bedroom, and a second bathroom. The design emphasizes a clear separation of functions: the study is set apart from the main living area, and the master bedroom is separated from the children’s rooms by a bathroom and gallery.
The gallery is a central feature of the house. It links the two floors, creates visual connections throughout, and encourages natural interaction between family members. Children can oversee the activity in the living room, while parents remain connected to the activity upstairs.
The gently sloping terrain allowed for a living space with an increased ceiling height, reinforcing the open character of the interior. The structural and formal simplicity of the building is balanced by an irregular composition of windows.
Daylight plays a key role in the design. Thanks to the considered arrangement of the upper floor, western light also reaches the east-facing living room. As a result, the space is filled with natural light throughout the day, allowing its atmosphere to shift with the time of day and season.
The living room extends directly into the garden, which is enclosed by a tall hedge providing privacy and screening the interior from surrounding views. The garden was designed by Partero studio, with construction carried out by Rojami.
Garden design: Ateliér Partero
Realisation: Rojami building
Photo: BoysPlayNice
Its simple cubic volume, defined by a flat roof and light beige textured plaster, references the tradition of Czech functionalism while responding to the needs of a contemporary family. The house is positioned along the side street, leaving the maximum amount of space for a garden with a swimming pool.
The floor plan is arranged across two levels. The ground floor contains a living room, study, and bathroom, while the upper floor accommodates two children’s bedrooms, a master bedroom, and a second bathroom. The design emphasizes a clear separation of functions: the study is set apart from the main living area, and the master bedroom is separated from the children’s rooms by a bathroom and gallery.
The gallery is a central feature of the house. It links the two floors, creates visual connections throughout, and encourages natural interaction between family members. Children can oversee the activity in the living room, while parents remain connected to the activity upstairs.
The gently sloping terrain allowed for a living space with an increased ceiling height, reinforcing the open character of the interior. The structural and formal simplicity of the building is balanced by an irregular composition of windows.
Daylight plays a key role in the design. Thanks to the considered arrangement of the upper floor, western light also reaches the east-facing living room. As a result, the space is filled with natural light throughout the day, allowing its atmosphere to shift with the time of day and season.
The living room extends directly into the garden, which is enclosed by a tall hedge providing privacy and screening the interior from surrounding views. The garden was designed by Partero studio, with construction carried out by Rojami.
Garden design: Ateliér Partero
Realisation: Rojami building
Photo: BoysPlayNice
×