
Rohan City Blok D
studie 2025
Městské bydlení na břehu Vltavy
Projekt ROHAN BLOK D přináší výjimečné městské bydlení v samém srdci dynamicky se rozvíjející pražské čtvrti Karlín. Architektonické řešení dvou navržených domů – elegantní obytné věže a solidního bytového domu – přímo navazuje na koncepci bloku D od ateliéru PSA, který je součástí širší urbanistické vize Rohanského ostrova. Ta transformuje bývalé industriální území v moderní, živou čtvrť propojenou s přírodou i městem.
Oba domy tvoří závěr polouzavřeného městského bloku a plynule navazují na nábřežní promenádu a parkový pás podél karlínského meandru Vltavy. Díky své poloze nabízí budoucím obyvatelům kombinaci klidného bydlení u vody a okamžité dostupnosti centra města.
Kontrast dvou domů, harmonie celku
Každý z objektů má svůj jedinečný charakter – obytná věž je štíhlá, vertikální, s až křehkým výrazem, zatímco bytový dům působí pevně, klidně a důstojně. Tento kontrast vytváří vizuální napětí, které obohacuje celkovou kompozici a posiluje identitu celého bloku.
Oba domy však spojuje jednotný přístup ke kvalitě bydlení – nabízí promyšlené a efektivní dispozice, vysoký standard zpracování a důraz na soukromí a komfort obyvatel. Prémiový standard zde není jen prázdnou frází, ale promítá se do každého detailu – od architektonického řešení až po volbu materiálů a standard vybavení.
Architektura, která reaguje na místo
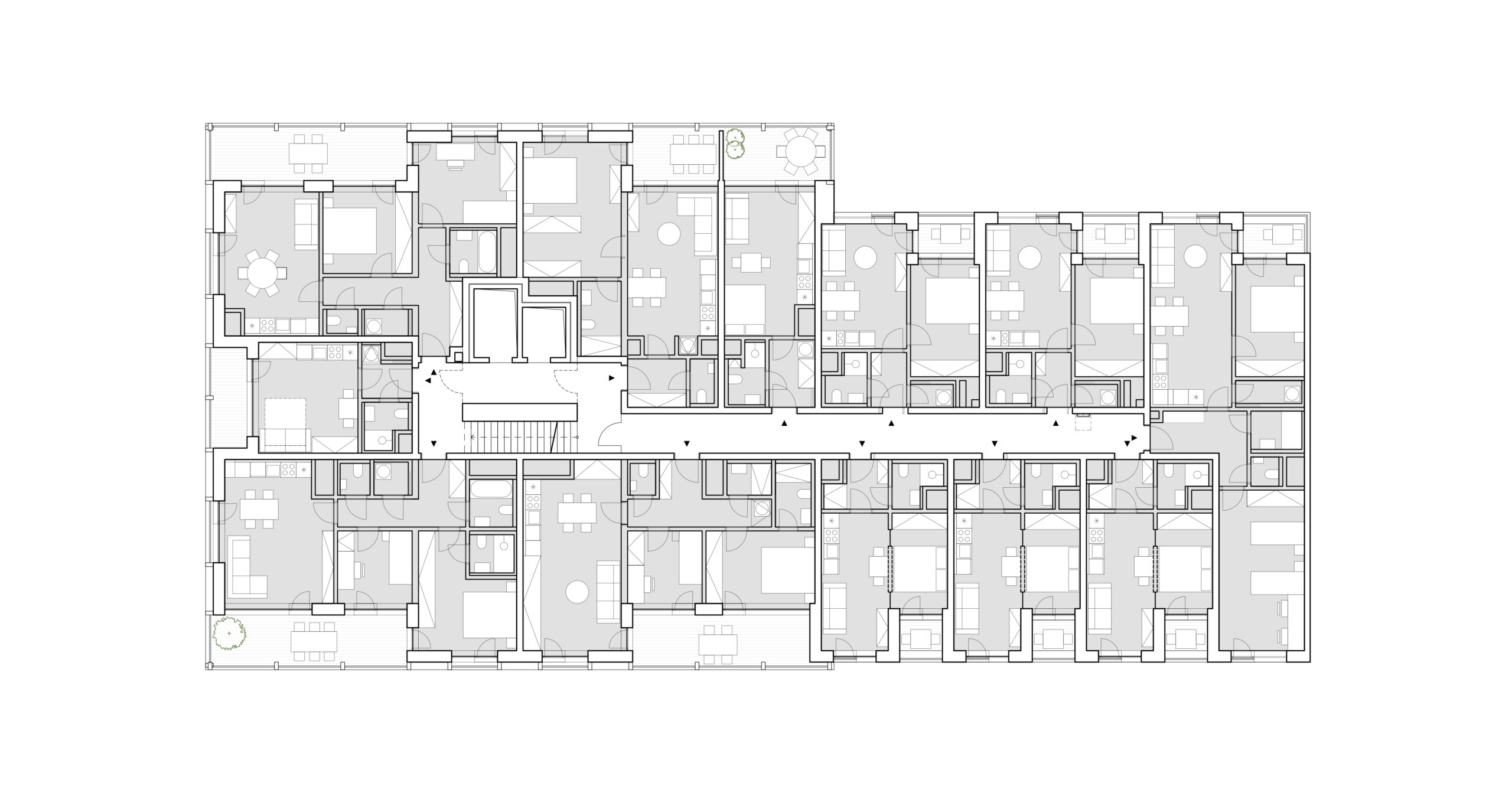
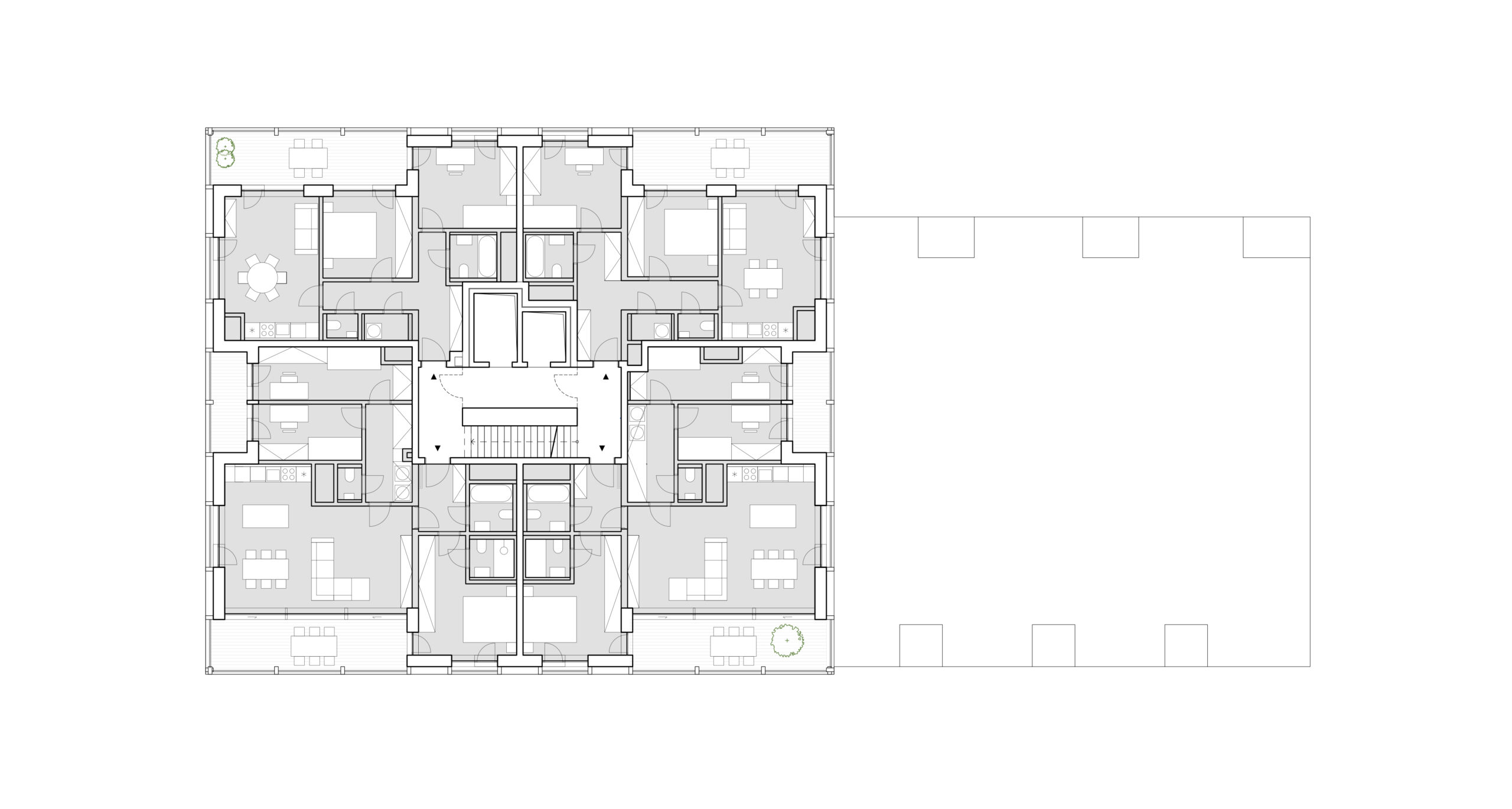
Obytná věž je navržena jako lehká dvouplášťová struktura, kde vnější hliníkové profily vytvářejí charakteristický vertikální rastr a zároveň slouží jako nosiče vnějšího stínění a zábradlí. Vnitřní fasádu tvoří kombinace prosklených ploch a profilovaných hliníkových panelů, čímž vzniká elegantní a funkční rytmus reagující na vnitřní uspořádání bytů.
Bytový dům kontrastuje svým pevnějším a hmotovějším výrazem, který mu dodává fasáda z pigmentovaných GRC prefabrikátů. Její pravidelná mřížka kombinuje otevřené lodžie s plnými segmenty, a vytváří tak pulzující rytmus, který oživuje uliční fasádu a zároveň zajišťuje intimitu bytů.
Kvalitní venkovní prostory jako nedílná součást bydlení
Oba domy kladou důraz na propojení interiéru s exteriérem – prostorné lodžie, terasy i soukromé předzahrádky rozšiřují obytný prostor směrem ven a umožňují obyvatelům vychutnat si kontakt s přírodou a okolím v každodenním životě. Vnitroblok je řešen jako sdílená zahrada, která nabízí prostor pro relaxaci, sousedská setkávání i bezpečné prostředí pro děti.
Promyšlená dostupnost a pohodlí
Oba objekty mají samostatný hlavní vstup z ulice, přímý vstup do vnitrobloku a také napojení na společné podzemní garáže, které zajišťují dostatek parkovacích míst a komfortní přístup k bytům. Společné vertikální jádro obou domů umožňuje efektivní provoz a zjednodušuje orientaci v objektu.
vizualizace: Frams
Projekt ROHAN BLOK D přináší výjimečné městské bydlení v samém srdci dynamicky se rozvíjející pražské čtvrti Karlín. Architektonické řešení dvou navržených domů – elegantní obytné věže a solidního bytového domu – přímo navazuje na koncepci bloku D od ateliéru PSA, který je součástí širší urbanistické vize Rohanského ostrova. Ta transformuje bývalé industriální území v moderní, živou čtvrť propojenou s přírodou i městem.
Oba domy tvoří závěr polouzavřeného městského bloku a plynule navazují na nábřežní promenádu a parkový pás podél karlínského meandru Vltavy. Díky své poloze nabízí budoucím obyvatelům kombinaci klidného bydlení u vody a okamžité dostupnosti centra města.
Kontrast dvou domů, harmonie celku
Každý z objektů má svůj jedinečný charakter – obytná věž je štíhlá, vertikální, s až křehkým výrazem, zatímco bytový dům působí pevně, klidně a důstojně. Tento kontrast vytváří vizuální napětí, které obohacuje celkovou kompozici a posiluje identitu celého bloku.
Oba domy však spojuje jednotný přístup ke kvalitě bydlení – nabízí promyšlené a efektivní dispozice, vysoký standard zpracování a důraz na soukromí a komfort obyvatel. Prémiový standard zde není jen prázdnou frází, ale promítá se do každého detailu – od architektonického řešení až po volbu materiálů a standard vybavení.
Architektura, která reaguje na místo
Obytná věž je navržena jako lehká dvouplášťová struktura, kde vnější hliníkové profily vytvářejí charakteristický vertikální rastr a zároveň slouží jako nosiče vnějšího stínění a zábradlí. Vnitřní fasádu tvoří kombinace prosklených ploch a profilovaných hliníkových panelů, čímž vzniká elegantní a funkční rytmus reagující na vnitřní uspořádání bytů.
Bytový dům kontrastuje svým pevnějším a hmotovějším výrazem, který mu dodává fasáda z pigmentovaných GRC prefabrikátů. Její pravidelná mřížka kombinuje otevřené lodžie s plnými segmenty, a vytváří tak pulzující rytmus, který oživuje uliční fasádu a zároveň zajišťuje intimitu bytů.
Kvalitní venkovní prostory jako nedílná součást bydlení
Oba domy kladou důraz na propojení interiéru s exteriérem – prostorné lodžie, terasy i soukromé předzahrádky rozšiřují obytný prostor směrem ven a umožňují obyvatelům vychutnat si kontakt s přírodou a okolím v každodenním životě. Vnitroblok je řešen jako sdílená zahrada, která nabízí prostor pro relaxaci, sousedská setkávání i bezpečné prostředí pro děti.
Promyšlená dostupnost a pohodlí
Oba objekty mají samostatný hlavní vstup z ulice, přímý vstup do vnitrobloku a také napojení na společné podzemní garáže, které zajišťují dostatek parkovacích míst a komfortní přístup k bytům. Společné vertikální jádro obou domů umožňuje efektivní provoz a zjednodušuje orientaci v objektu.
vizualizace: Frams
×