
La Bottega Gastronomica
realizace 2013
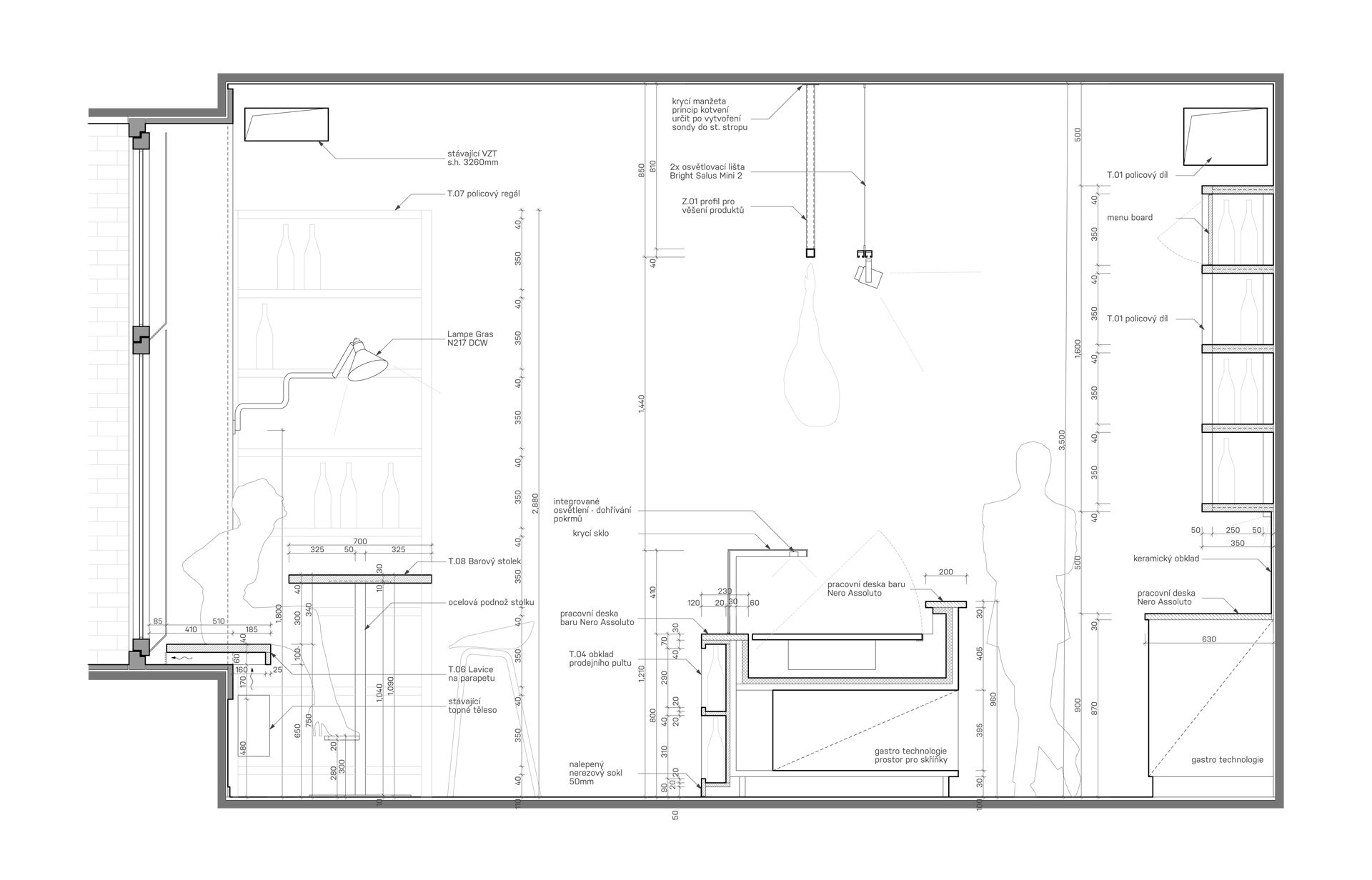
Riccardo Lucque je známý tím, že vždy dává velký důraz kvalitu. Myslíme si, že když přišel za námi na první schůzku se svojí představou nové La Bottegy na Žižkově už tušil, že tento prostor jednoznačně kvalitu nabídnout může. Naše práce tedy byla jí najít, pojmenovat a poté jí srozumitelně nabídnout zákazníkům. Nejatraktivnějším prvkem je jednoznačně intenzivní propojení interiéru s exteriérem přes velká okna, která se navíc dají v létě téměř celá otevřít. Prostor je proto velmi světlý a nabízí nádherné výhledy do Mahlerových sadů. Rozhodli jsme se tedy umístit lavice pro sezení hostů přímo do oken a zároveň tím ušetřit trochu místa pro cirkulaci zákazníku podél dlouhého prodejního pultu. Vzhledem k tomu, že prostor slouží také jako prodejna italských potravin, bylo nutné navrhnout maximální možné množství regálů pro vystavení nejrůznějších produktů. Po vstupu do prostoru je člověk ze všech stran obklopen lákavými sýry, salámy, víny, sladkostmi a prosciutty, a to je samozřejmě z obchodního hlediska ideální stav. Materiálové řešení vychází z důrazu na přírodní materiály a prosvětlenost interiéru. Modulární regálový systém je z masivního dubu opatřeným bílým olejovým nátěrem. Pracovní plochy jsou z kombinace nerezu, černé žuly a bílého keramického obkladu.
fotografie: Saša Dobrovodský
fotografie: Saša Dobrovodský
×