
Sportovní areál
Vodňany
realizace 2013
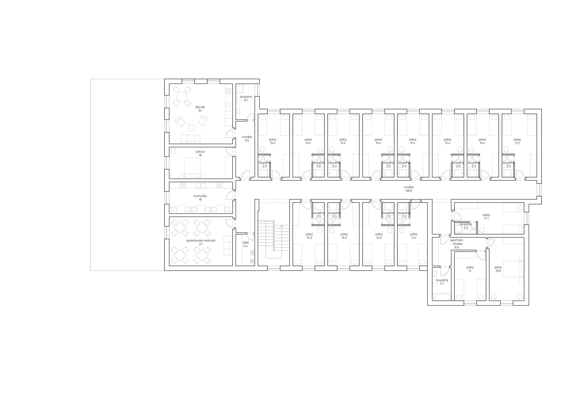
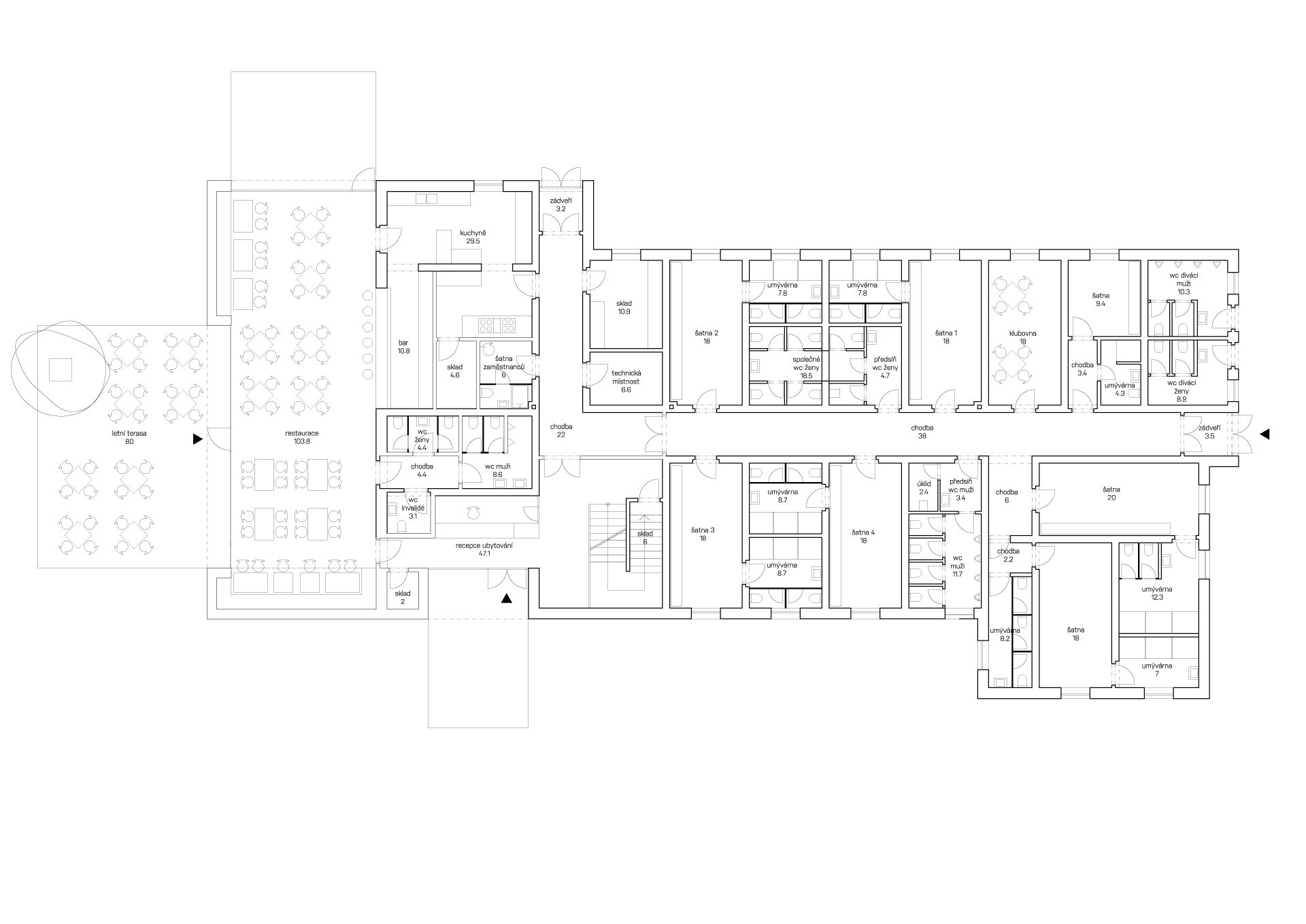
Příběh sportovního areálu Blanice je věnovaný desítkám lidí, díky nimž mají Vodňanští víceúčelovou budovu s jedinečným architektonickým designem. Navržena a postavena byla s velkým nadšením a energií. Skutečnost, že se jedná o budovu veřejnou (ve vlastnictví města), tuto jedinečnost jen podtrhuje. Ale pěkně po pořádku. V roce 1982 zde byl pro zázemí sportovců postaven, v tehdejší „dobrovolné akci Z“, nejprve jednopodlažní dům, který byl následně v roce 1988 doplněn o patro s ubytovnou. Budova poté skoro 30 let plnila svůj účel… a zub času ji bez povšimnutí pozvolna ohlodával. Do zorného pole se budova Blanice opět dostala až v roce 2010. Zjistilo se, jak moc za těch málo let zchátrala. Začalo se opatrně mluvit nejprve o opravě, pak o úpravě a nakonec o kompletní přestavbě. Události začaly dostávat spád a nabraly obrátky. Uspořádání veřejné architektonické soutěže o návrh už v podstatě jen zapadá do mozaiky následující série překvapivých nápadů, zásadních idejí, nečekaných zvratů a šťastných okolností, které provázely celý projekt až do finále. V lednu 2013 byla soutěž o návrh odstartována a o Vánocích 2013 se už ladily poslední detaily projektové dokumentace. V květnu následujícího roku se zde rozběhl neuvěřitelný stavební mumraj a již po 5 (značně napínavých) měsících bylo dílo dokončeno. Nutno dodat, že po celou dobu fungovali všichni na staveništi jako dobře sehraný sportovní top tým. Příprava podkladů a shoda na budoucím uspořádání budovy trvala 2 roky. Samotná realizace – řečeno příslovím těžko na cvičišti, lehko na bojišti – zato probíhala od vyhlášení soutěže po kolaudaci jen 20 měsíců (!). To, že šlo o dosud nejrychleji realizovaný projekt v ČR vzešlý z architektonické soutěže je jen jedna z mnoha zajímavostí. Další a lépe viditelnou je třeba zakomponování městského vizuálního stylu dětských kreseb do obkladaček nebo tapet v pokojích. Skutečnost, že objekt je určen pro trávení volného času a pro potěšení, se nejspíše odrazila na celé akci – všichni, kteří přiložili ruku k dílu, tak činili s radostí, hravostí a nadšením a na výsledku je to poznat.
fotografie: Mark Prethero
fotografie: Mark Prethero
×