
Rekonstrukce statku ve Žloukovicích
realizace 2011
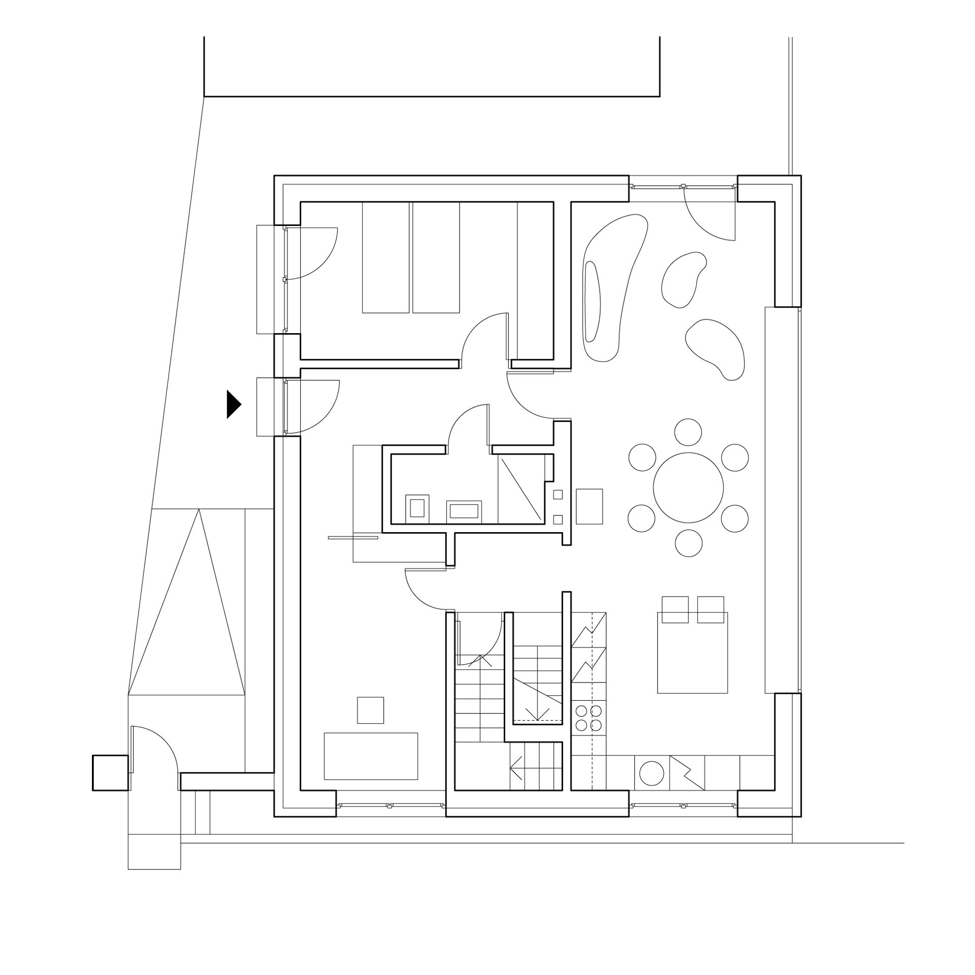
Statek se nachází při hlavní přístupové silnice do obce Žloukovice, řešený objekt je součástí areálu původního statku, jeho hlavní fasáda je orientovaná na východ k řece Berounce. Objekt je jednopodlažní s podkrovím a je částečně podsklepen, původní hmota zůstává beze změny a splňuje podrobnou regulaci CHKO Křivoklátsko, obytné místnosti v přízemí a podkroví jsou umístěné při východní fasádě orientované k řece Berounce, hlavním zásahem do původního objektu je pevně zasklené 6,2m široké okno s rozšířeným pobytovým parapetem, které je umístěno po celé délce obývacího prostoru v přízemí, stávající dispozice přízemí byla upravena dle nového programu tak, aby bylo možné obejít centrální hygienické jádro, fasáda objektu je bílá a odkazuje na původní vápenné nátěry vesnických chalup, hmota objektu je usazená na stávající masivní kamenné podezdívce. Objekt je zděný z pálených cihel, dřevěný krov je zateplený mezi krokvemi, střešní krytina je z vláknocementových šablon vyráběných v nedalekém Berouně, vnitřní nenosné konstrukce jsou z plynosilikátových tvárnic a SDK konstrukcí, výplně vnějších otvorů jsou z dřevohliníkových oken, vnitřní dveře jsou dřevěné bezfalcové, podlahy v interiéru jsou kombinací keramické dlažby a masivní dřevěné kantovky, objekt je kompletně zateplen a je vytápěn kotlem na dřevěné pelety.
fotografie: Michal Šeba
fotografie: Michal Šeba
×