
Rekonstrukce vily na Smíchově
studie 2019
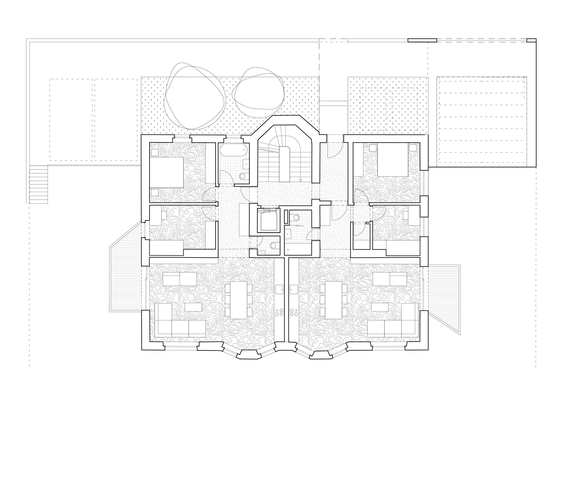
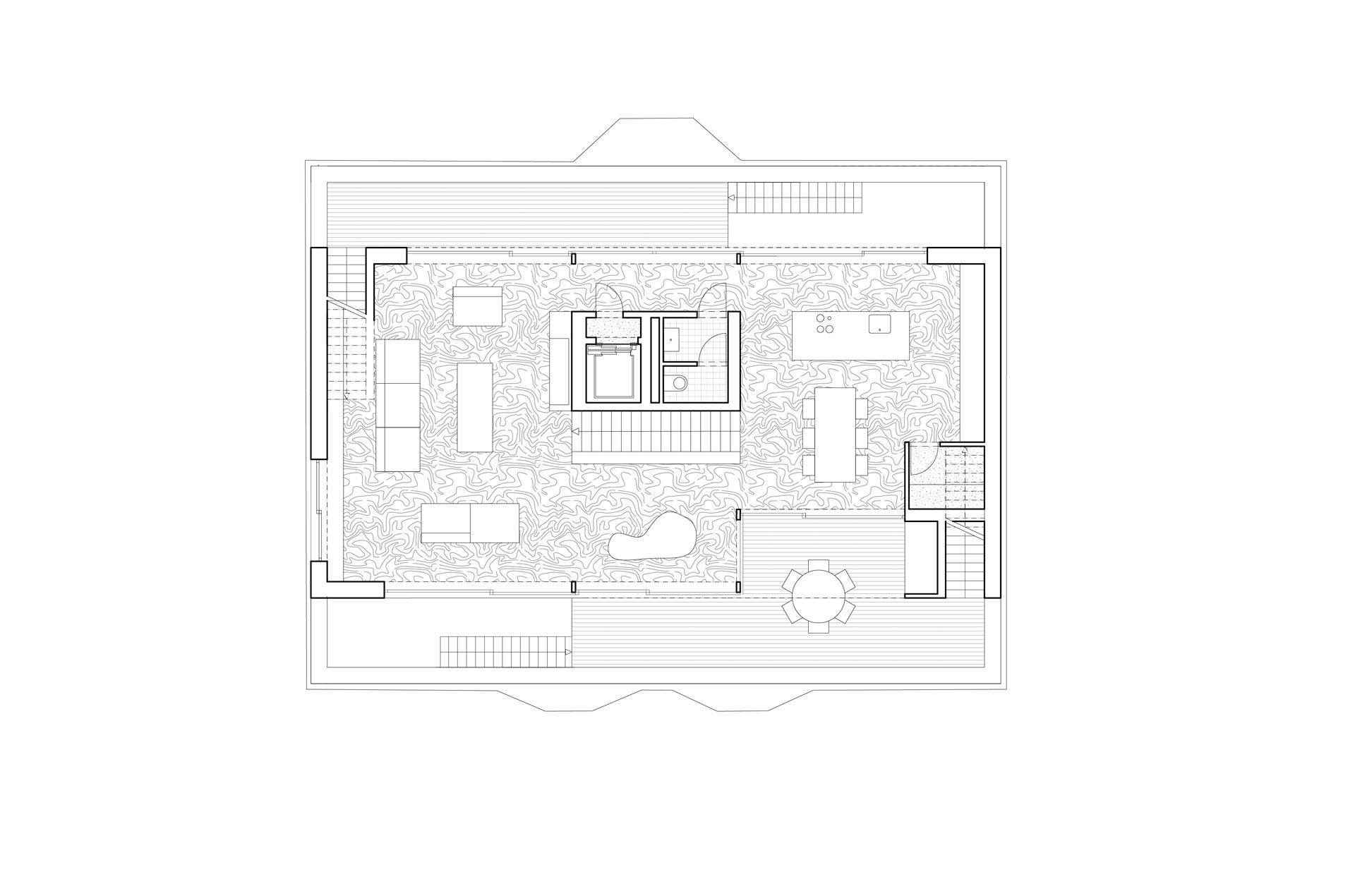
Hlavním cílem architektonického řešení bylo docílit kontrastu mezi novým a starým. Proto se tělo budovy stavebními zásahy příliš nezmění. Do kontrastu s historickou částí objektu bude vystavěna moderní nástavba charakteristická velkoplošným zasklením a hliníkovou fasádou. K částečnému propojení těla budovy a její nové části poslouží zachování původních štítů polovalbové střechy v úrovni hlavní římsy, jejichž sklon se při vědomí splnění parametrů kladených na ustoupené podlaží stane základní inspirací k expresivnímu tvarování nástavby. Zpětným odrazem nové části domu do původní hmoty budou hliníkové balkóny konzolované z východní a západní fasády objektu. Zahradní přístavba bude formována tak, aby co nejvíce splynula se stávajícím terénem a vizuálně nerušila základní kontrast hlavního objektu. Stejně tak budou řešeny konstrukce zakladače, oplocení a zpevněných ploch na pozemku.
×