
Byt v Lannově
realizace 2019
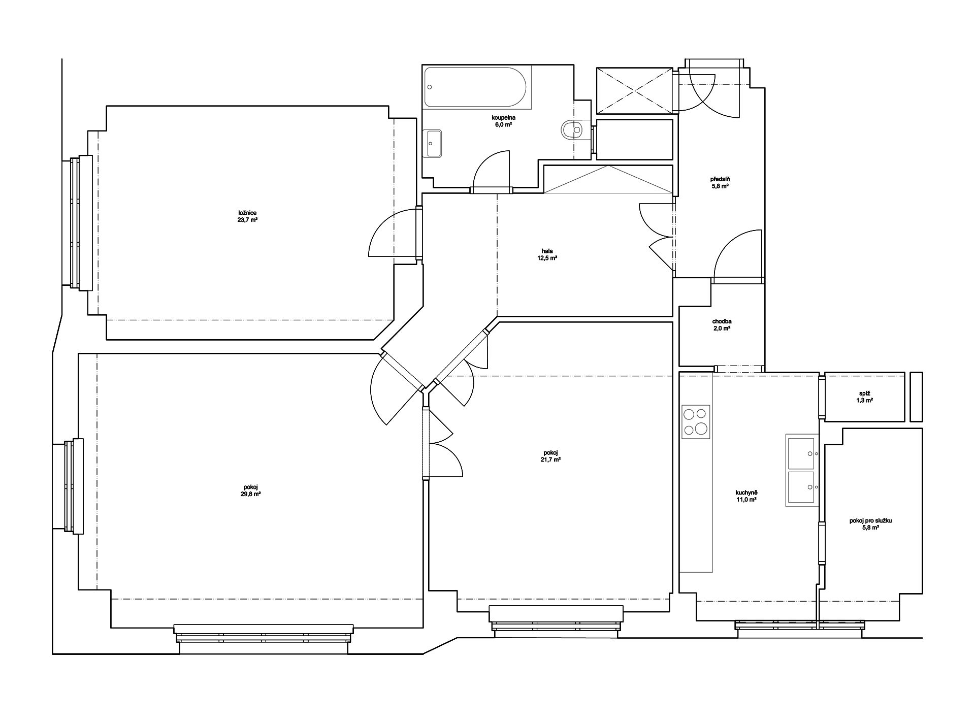
Návrh interiéru v domě na pražském nábřeží postaveném roku 1938 dle návrhu architekta Fritze Lehmanna.
Respektujeme paměť místa, a tak se v co největší možné míře snažíme zachovat dobový charakter bytu. Dispozici citlivě adaptujeme pro potřeby dnešních obyvatel, zvláštní péči přitom věnujeme řemeslné repasi všech dochovaných původních prvků interiéru.
Středobodem bytu se tak stává obytný prostor velkoryse propojený s kuchyní a jídelnou pomocí původních dvoukřídlých dveří s přidaným nadsvětlíkem.
Stávající kuchyni s pokojíkem pro služku pak proměňujeme v moderní ložnici s kompletním zázemím včetně vlastní šatny a koupelny.
Atmosféru třicátých let dokreslují i oblé linie a jemné pastelové tóny, které prostupují celým interiérem.
Respektujeme paměť místa, a tak se v co největší možné míře snažíme zachovat dobový charakter bytu. Dispozici citlivě adaptujeme pro potřeby dnešních obyvatel, zvláštní péči přitom věnujeme řemeslné repasi všech dochovaných původních prvků interiéru.
Středobodem bytu se tak stává obytný prostor velkoryse propojený s kuchyní a jídelnou pomocí původních dvoukřídlých dveří s přidaným nadsvětlíkem.
Stávající kuchyni s pokojíkem pro služku pak proměňujeme v moderní ložnici s kompletním zázemím včetně vlastní šatny a koupelny.
Atmosféru třicátých let dokreslují i oblé linie a jemné pastelové tóny, které prostupují celým interiérem.
×