
Dům na domě
realizace 2013
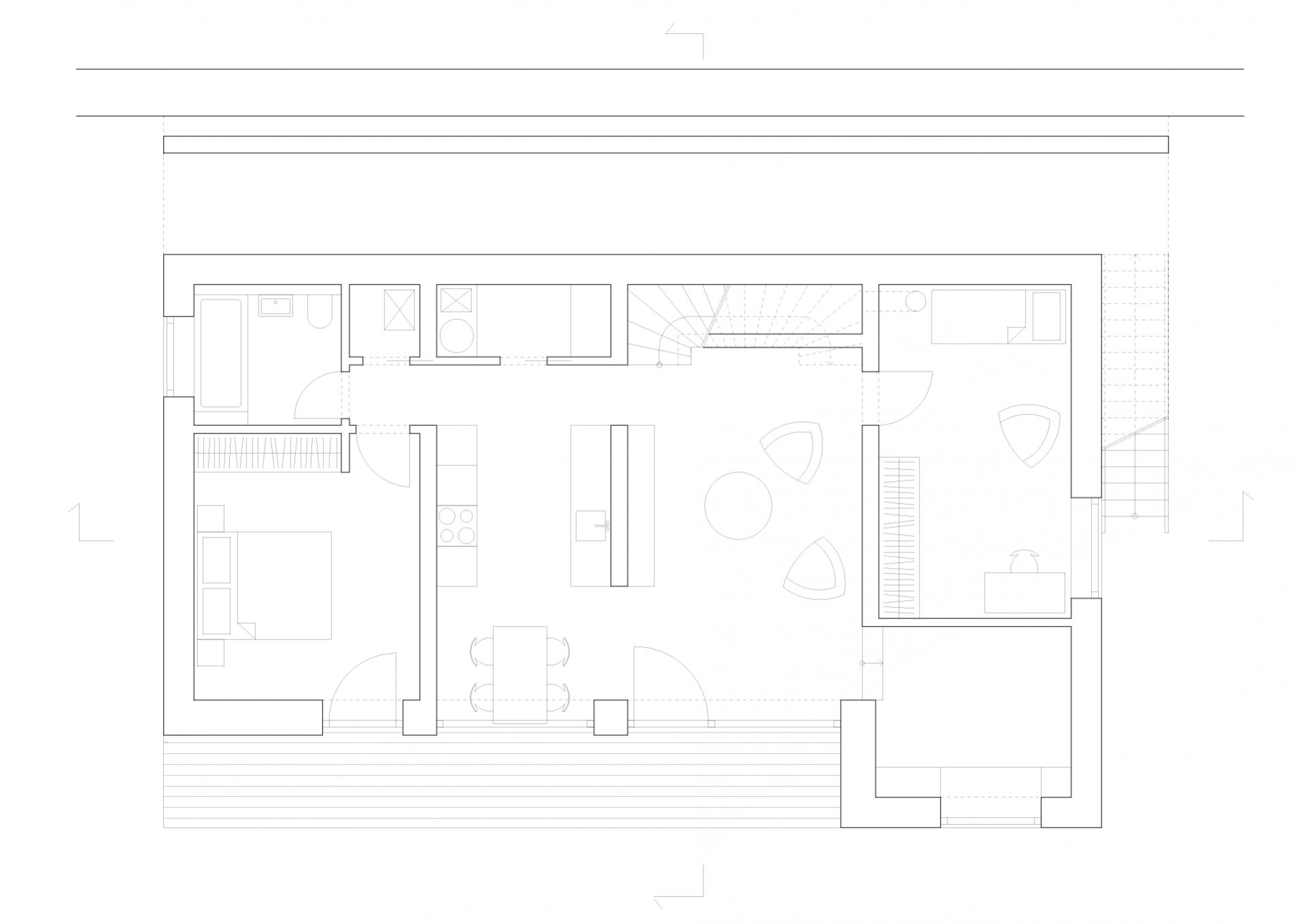
Jakým způsobem se vypořádat s rozdílem výškových úrovní komunikace a pozemku a s regulativem vyžadujícím sedlovou střechu? Jakým způsobem navrhnout dům s maximálním kontaktem se zahradou? Klienti si přáli malý dům s velkou zahradou v Mníšku pod Brdy. Navrhli jsme dvoupodlažní objekt situovaný na severní hranu pozemku, kde je většina obytné plochy umístěna ve spodním podlaží v přímém kontaktu s terasou a zelení. Terasa je kryta přesahem střechy, který zároveň stíní převážnou část jižní fasády. Nahoře, v domečku se sedlovou střechou, se nachází vstupní část a jedna obytná místnost orientovaná na jih do zahrady. Výhledům dominuje mohutná památná lípa u potoka na jihu pozemku.
fotografie: Mark Prethero
fotografie: Mark Prethero
×