
Hájenka
studie 2023
Nad strmým srázem uprostřed lesů v meandru řeky Vltavy v místě původní hájenky navrhujeme víkendový dům tradiční formy v moderním a minimalistickém pojetí.
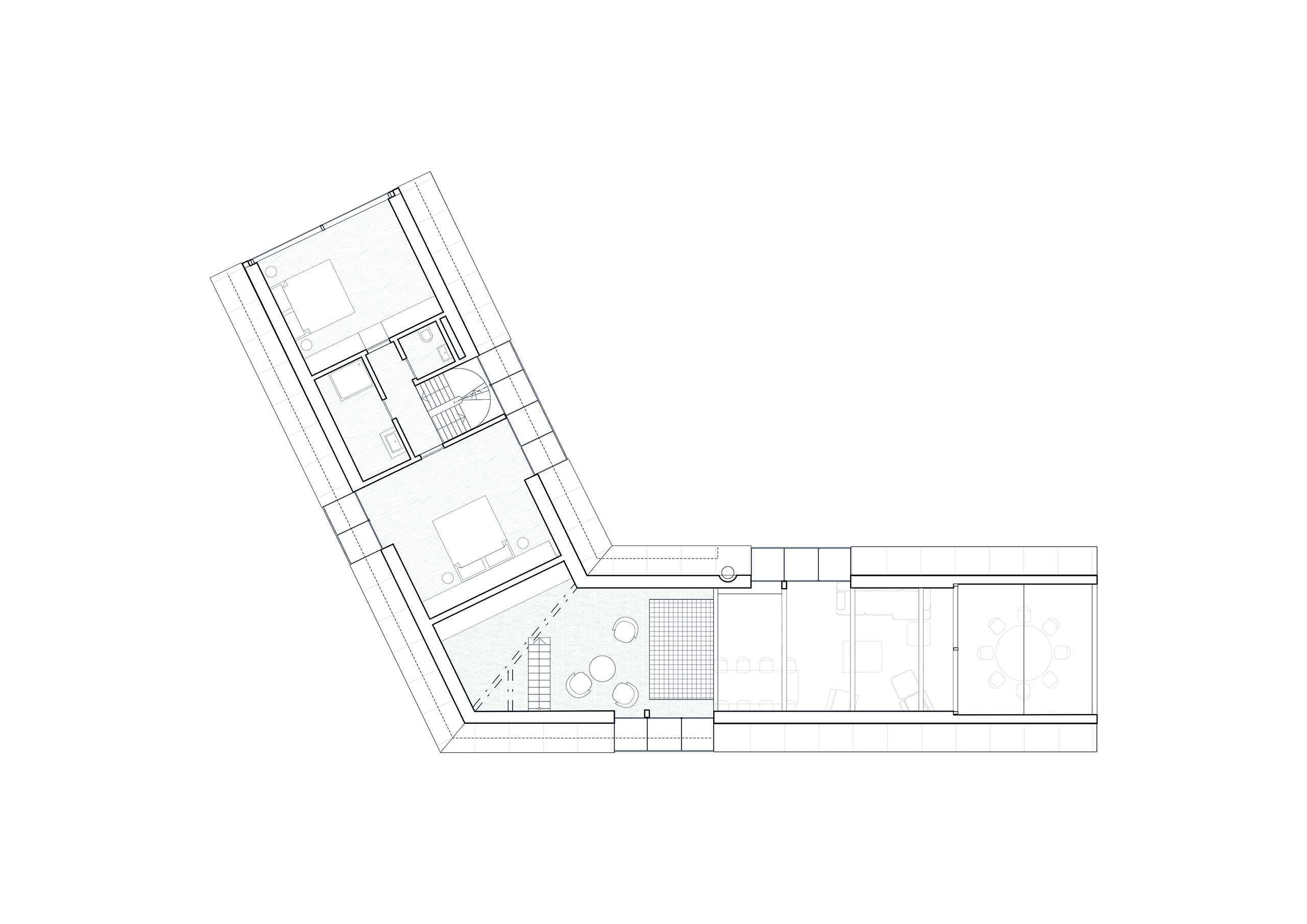
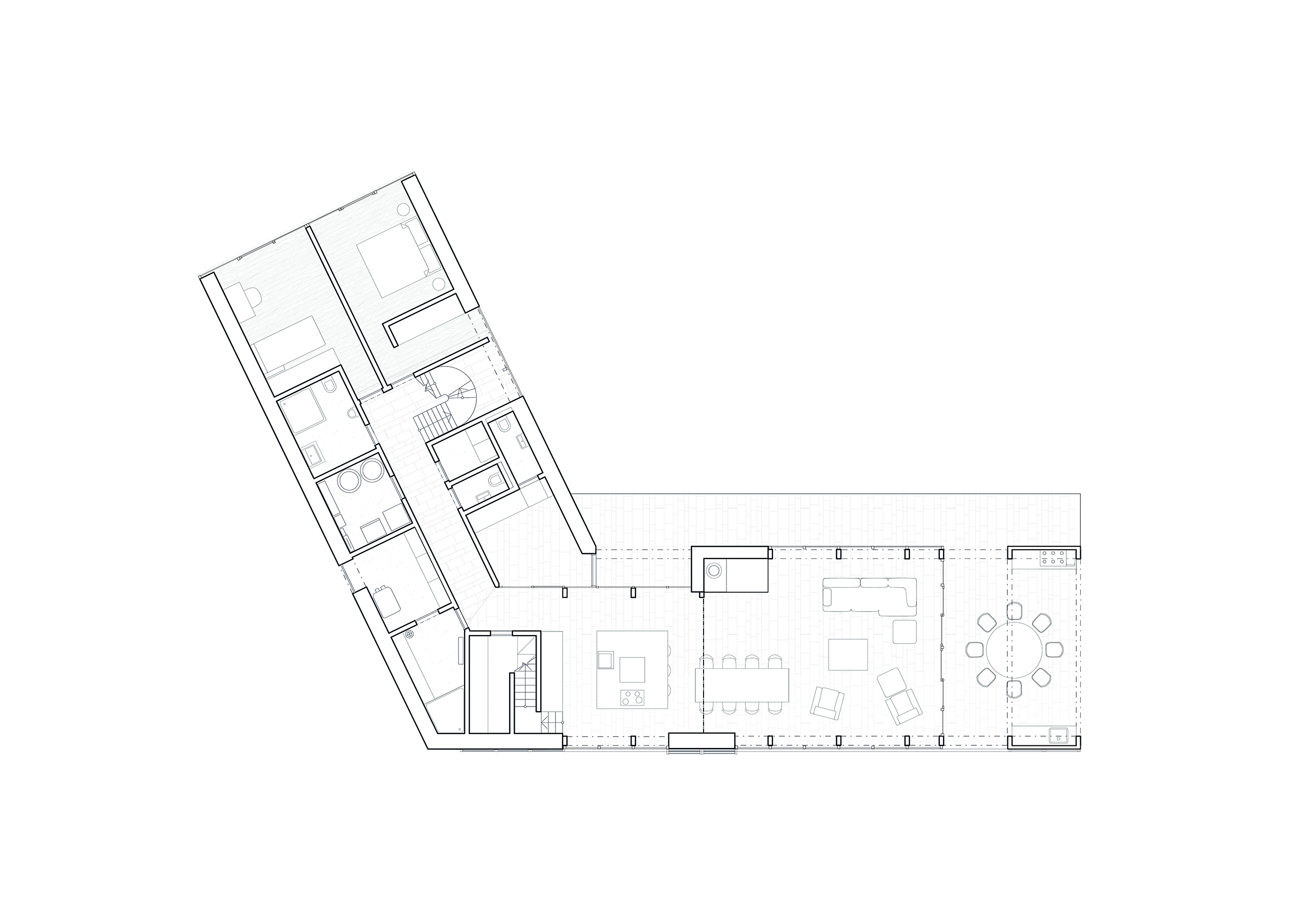
Navržená stavba sleduje půdorysnou stopu stávajícího objektu a rozrůstá se směrem na sever. Reaguje tak na místní limity, ochranná pásma i vzrostlou zeleň. Výsledkem je jednoduchá, jednou zalomená dvoupodlažní stavba se sedlovou střechou.
Velkorysé prosklení různých částí domu poskytuje kýžený wow efekt a zároveň cíleně propojuje interiér s okolním prostředím. V exteriéru se vzájemně doplňují falcovaný plech a dřevěný obklad v tmavých odstínech. Zalomení hmoty dělí dispozičně dům na dvě stejně velké části, v jedné je umístěna kuchyň s převýšeným obytným prostorem a prostornou krytou terasou, v druhé noční část a technologické zázemí. V kontrastu k tmavé fasádě je interiér navržen ve světlých odstínech s využitím dřevěného obkladu a kamenné dlažby.
Technologicky bude dům vybaven na omezený ostrovní provoz s využitím tepelného čerpadla, kotle na dřevo a fotovoltaické elektrárny. Dochlazování domu v letních měsících bude řešeno pomocí chlazených stropů. Ovládání všech systémů bude mít na starosti inteligentní elektroinstalace KNX.
Navržená stavba sleduje půdorysnou stopu stávajícího objektu a rozrůstá se směrem na sever. Reaguje tak na místní limity, ochranná pásma i vzrostlou zeleň. Výsledkem je jednoduchá, jednou zalomená dvoupodlažní stavba se sedlovou střechou.
Velkorysé prosklení různých částí domu poskytuje kýžený wow efekt a zároveň cíleně propojuje interiér s okolním prostředím. V exteriéru se vzájemně doplňují falcovaný plech a dřevěný obklad v tmavých odstínech. Zalomení hmoty dělí dispozičně dům na dvě stejně velké části, v jedné je umístěna kuchyň s převýšeným obytným prostorem a prostornou krytou terasou, v druhé noční část a technologické zázemí. V kontrastu k tmavé fasádě je interiér navržen ve světlých odstínech s využitím dřevěného obkladu a kamenné dlažby.
Technologicky bude dům vybaven na omezený ostrovní provoz s využitím tepelného čerpadla, kotle na dřevo a fotovoltaické elektrárny. Dochlazování domu v letních měsících bude řešeno pomocí chlazených stropů. Ovládání všech systémů bude mít na starosti inteligentní elektroinstalace KNX.
×