
Rekonstrukce domu v Letňanech
realizace 2016
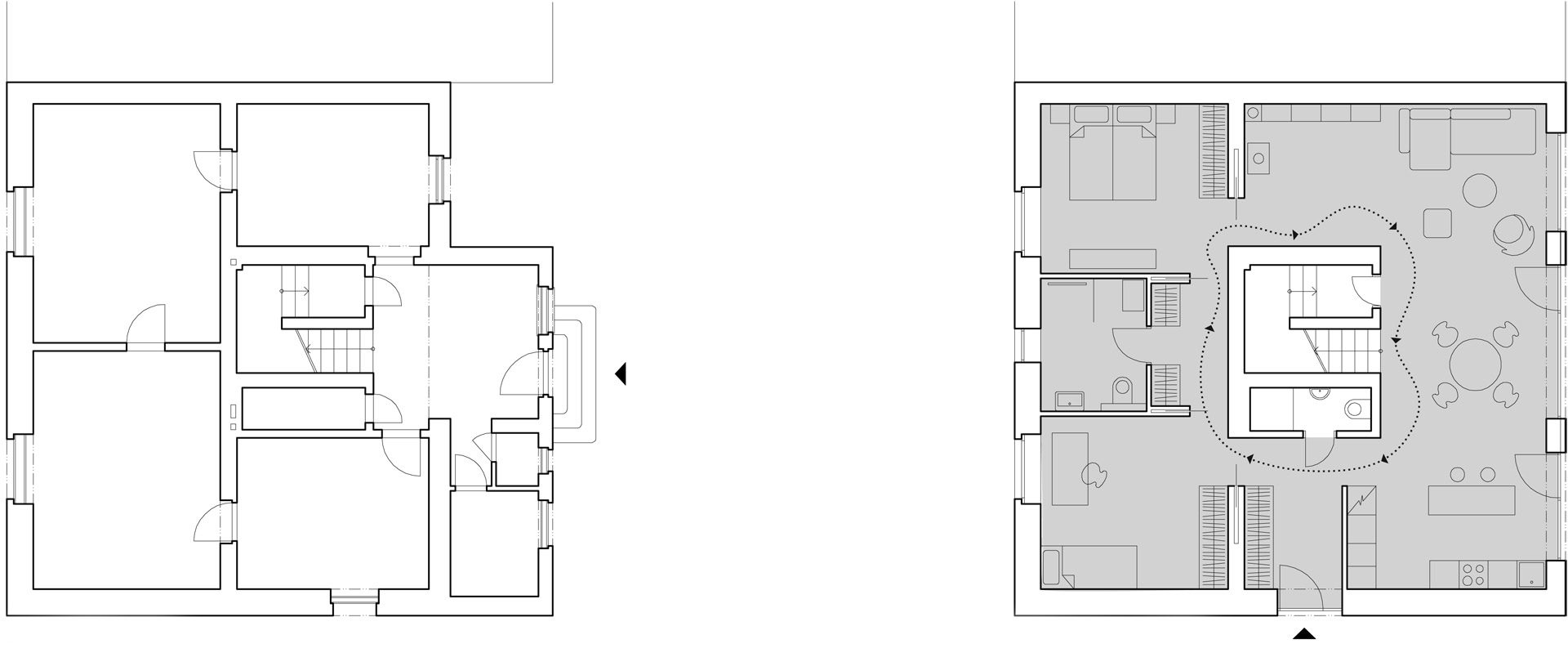
Dvojdům z první poloviny 20. století ve starých Letňanech byl navržen s klasickým uspořádáním – vstup do domu byl umístěn ze dvora tak, aby byl co nejblíže hospodářským stavením, a okna obytných místností směřovala do klidné ulice. Přesunutím hlavní obytné části směrem k zahradě a zvýšení terénu na úroveň 1.NP vzniká centrální venkovní pobytový prostor, který propojuje dům se zahradním altánem (bývalou kůlnou) a garáží. Do domu se nově vstupuje z boční příjezdové cesty. Uprostřed dispozice vzniká kvádr se schodištěm obložený borovicovou překližkou, ke kterému doléhají posuvné dveře dvou rohových pokojů a koupelny. V patře jsou umístěny dva dětské pokoje s koupelnou a šatnou.
×