
Vila Točná
studie 2022
K lesu zády, ke mně vchodem! Nebo k lesu vchod? Žádný domek na kuří nožce, ale prémiová vila ve svahu s lesem Modřanské rokle v zádech a krásným výhledem na Prahu.
Vila pro klienta, který žije trvale v USA a zde si přál postavit dům se zázemím, kam se bude moci uchylovat se svými blízkými při cestách do Česka. Inspirací pro jeho druhý domov mu byl jeden z našich předchozích projektů.
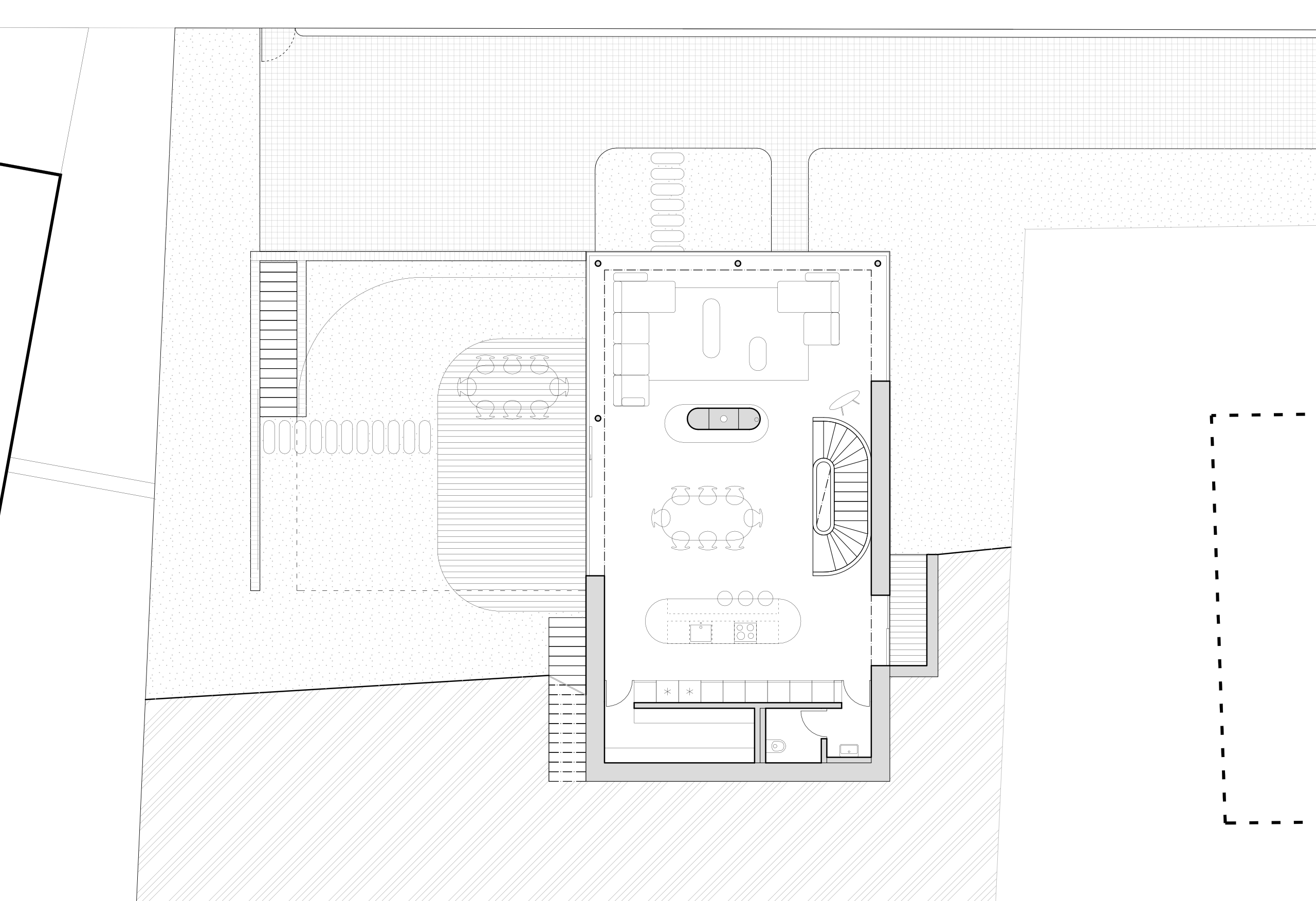
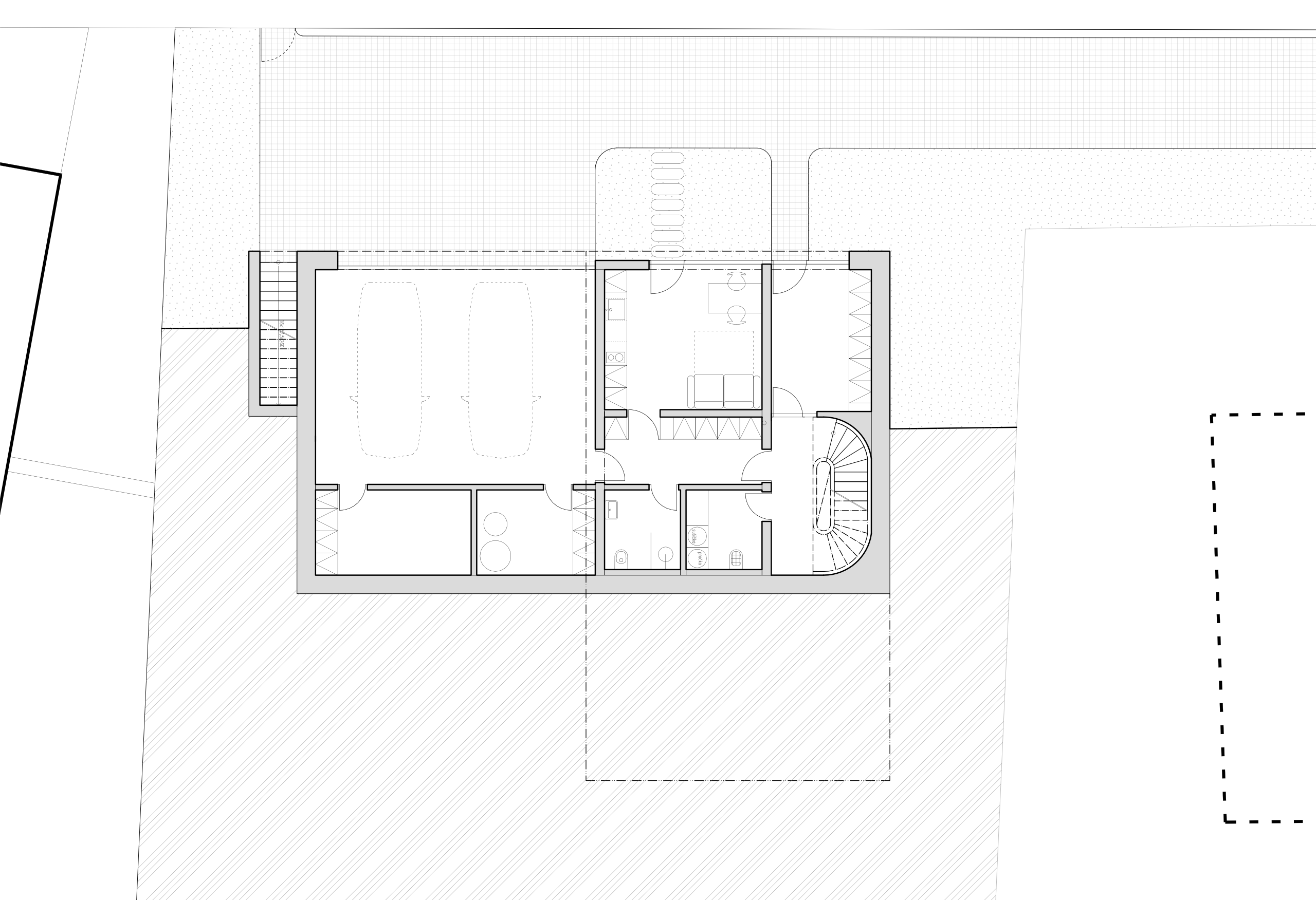
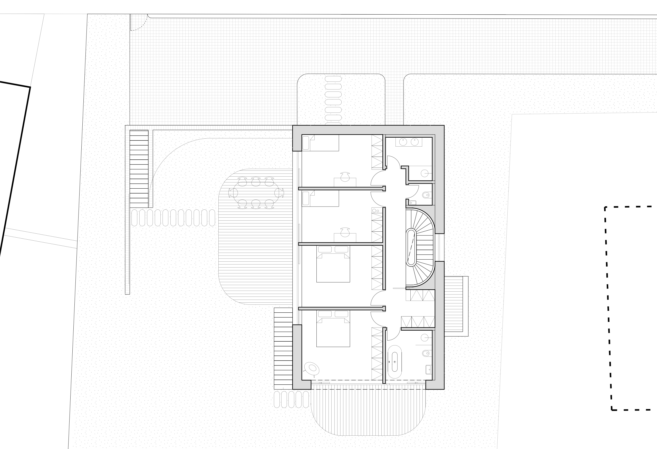
Stavba stojí na svažitém pozemku s dvěma terénními zlomy, které jsme využili pro výslednou dispozici celého objektu. Na nejnižší úrovni je umístěn suterén s garáží, garsonkou pro hosty a technickým zázemím. Dvě nadzemní patra podélného tvaru svým maximálním odstupem od sousedního domu vytváří prostor pro osluněnou západní terasu na úrovni obytného patra. Nejvýraznějšími prvky v interiéru je solitérní točité schodiště propojující jednotlivá patra a extravagantní krb oddělující obývací místnost od kuchyně a jídelny. V nejvyšším obytném patře je díky umístění na terénu možné vyjít ven na vlastní terasu směrem k lesu z hlavní ložnice i z koupelny. Třípodlažní převýšenou fasádu odlehčuje velkorysé prosklení, které maximalizuje atraktivní výhledy na vzdálené horizonty a propojuje obytný prostor s terasou. Cihlový obklad střídáním horizontální a vertikální skladby akcentuje kompozici fasády.
Vila pro klienta, který žije trvale v USA a zde si přál postavit dům se zázemím, kam se bude moci uchylovat se svými blízkými při cestách do Česka. Inspirací pro jeho druhý domov mu byl jeden z našich předchozích projektů.
Stavba stojí na svažitém pozemku s dvěma terénními zlomy, které jsme využili pro výslednou dispozici celého objektu. Na nejnižší úrovni je umístěn suterén s garáží, garsonkou pro hosty a technickým zázemím. Dvě nadzemní patra podélného tvaru svým maximálním odstupem od sousedního domu vytváří prostor pro osluněnou západní terasu na úrovni obytného patra. Nejvýraznějšími prvky v interiéru je solitérní točité schodiště propojující jednotlivá patra a extravagantní krb oddělující obývací místnost od kuchyně a jídelny. V nejvyšším obytném patře je díky umístění na terénu možné vyjít ven na vlastní terasu směrem k lesu z hlavní ložnice i z koupelny. Třípodlažní převýšenou fasádu odlehčuje velkorysé prosklení, které maximalizuje atraktivní výhledy na vzdálené horizonty a propojuje obytný prostor s terasou. Cihlový obklad střídáním horizontální a vertikální skladby akcentuje kompozici fasády.
×