
Library Loop
soutěž 2012
Město Helsinki se rozhodlo využít příležitosti s novým rozvojem ploch v blízkosti centra a splnit si svůj sen o nové knihovně, která by ztělesňovala finskou vášeň pro čtení a literaturu a zároveň svým provozem vyhovovala novým požadavkům informační společnosti. Náš návrh sledoval 3 hlavní myšlenky:
1. pojmout budovu primárně jako veřejné společenské místo, což odráží posun role knihoven v 21. století.
2. soustředit se na uživatelský komfort a poskytnout prostředí orientované na lidi spíš než ohromující monumentalitu.
3. zahrnout do řešení otázky udržitelnosti a maximálně využít přírodních jevů jako je denní světlo, solární tepelné zisky či přirozené větrání.
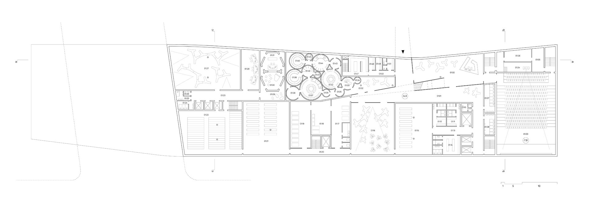
Navržené řešení se snaží nabídnout bohatý prostor poskytující žádoucí vizuální kontakt mezi jednotlivými provozy a funkcemi uvnitř budovy. Základní objem odpovídající limitům pozemku se rozčlenil do podélných vzájemně se prolínajících pruhů, díky čemuž se knihovna stává uzavřenou smyčkou plynoucího prostoru. Zalitý světlem, překvapující průhledy a inspirující svou komplexitou zve prostor návštěvníky, aby pokračovali dál a objevovali víc, pokaždé novou cestou. Zatímco vnější fasády jsou sjednoceny obkladem ze skleněných panelů s měnící se opacitou, které budově mají dodat nezávislý a nadčasový vzhled, interiér se vyznačuje bohatým použitím dřevěných povrchů, aby se návštěvníci cítili příjemně jako doma – anebo v sauně.
1. pojmout budovu primárně jako veřejné společenské místo, což odráží posun role knihoven v 21. století.
2. soustředit se na uživatelský komfort a poskytnout prostředí orientované na lidi spíš než ohromující monumentalitu.
3. zahrnout do řešení otázky udržitelnosti a maximálně využít přírodních jevů jako je denní světlo, solární tepelné zisky či přirozené větrání.
Navržené řešení se snaží nabídnout bohatý prostor poskytující žádoucí vizuální kontakt mezi jednotlivými provozy a funkcemi uvnitř budovy. Základní objem odpovídající limitům pozemku se rozčlenil do podélných vzájemně se prolínajících pruhů, díky čemuž se knihovna stává uzavřenou smyčkou plynoucího prostoru. Zalitý světlem, překvapující průhledy a inspirující svou komplexitou zve prostor návštěvníky, aby pokračovali dál a objevovali víc, pokaždé novou cestou. Zatímco vnější fasády jsou sjednoceny obkladem ze skleněných panelů s měnící se opacitou, které budově mají dodat nezávislý a nadčasový vzhled, interiér se vyznačuje bohatým použitím dřevěných povrchů, aby se návštěvníci cítili příjemně jako doma – anebo v sauně.
×