
Sportovní areál
Chrudim
soutěž 2014
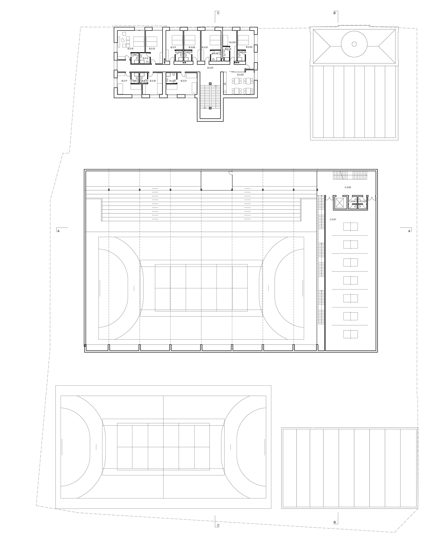
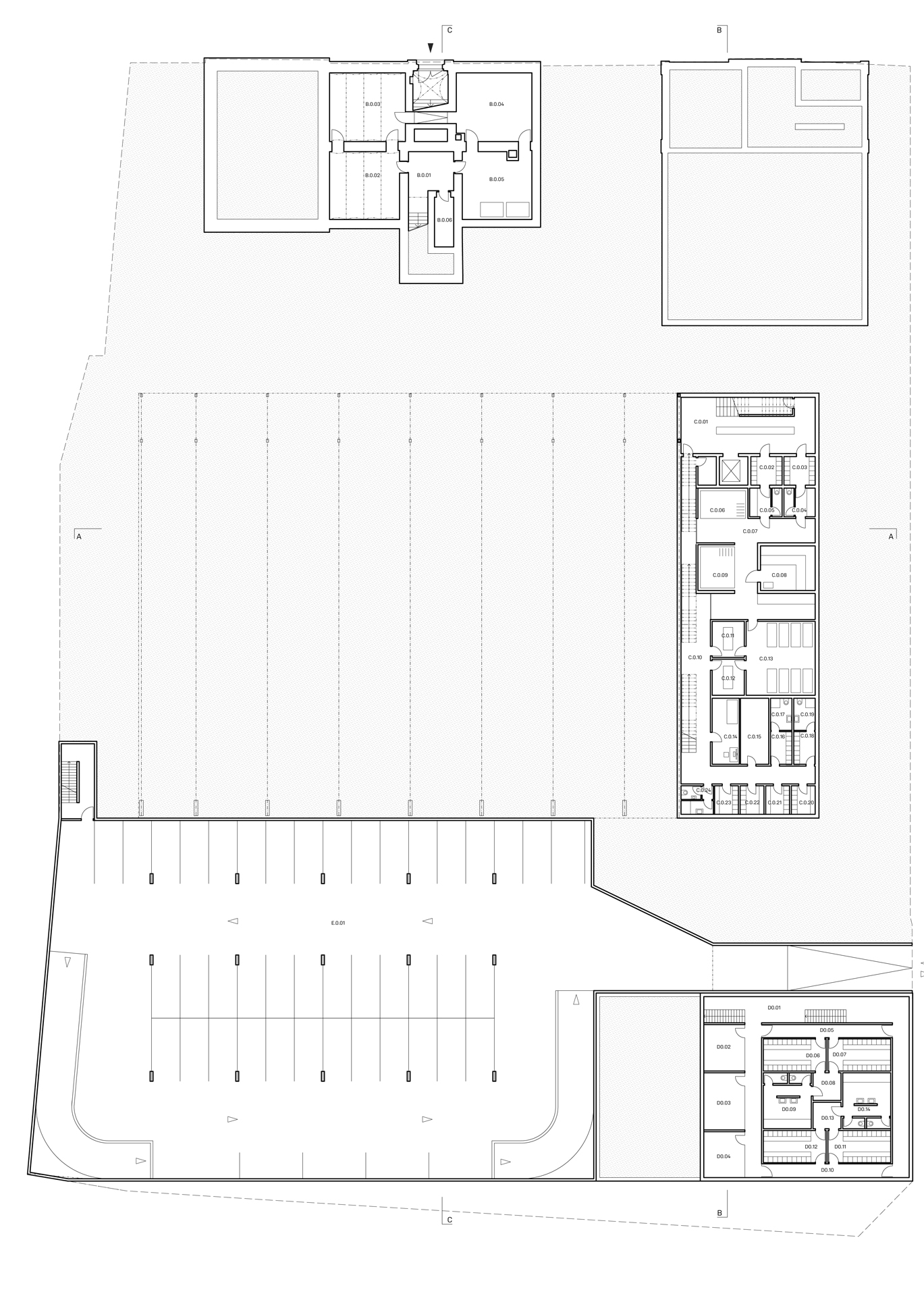
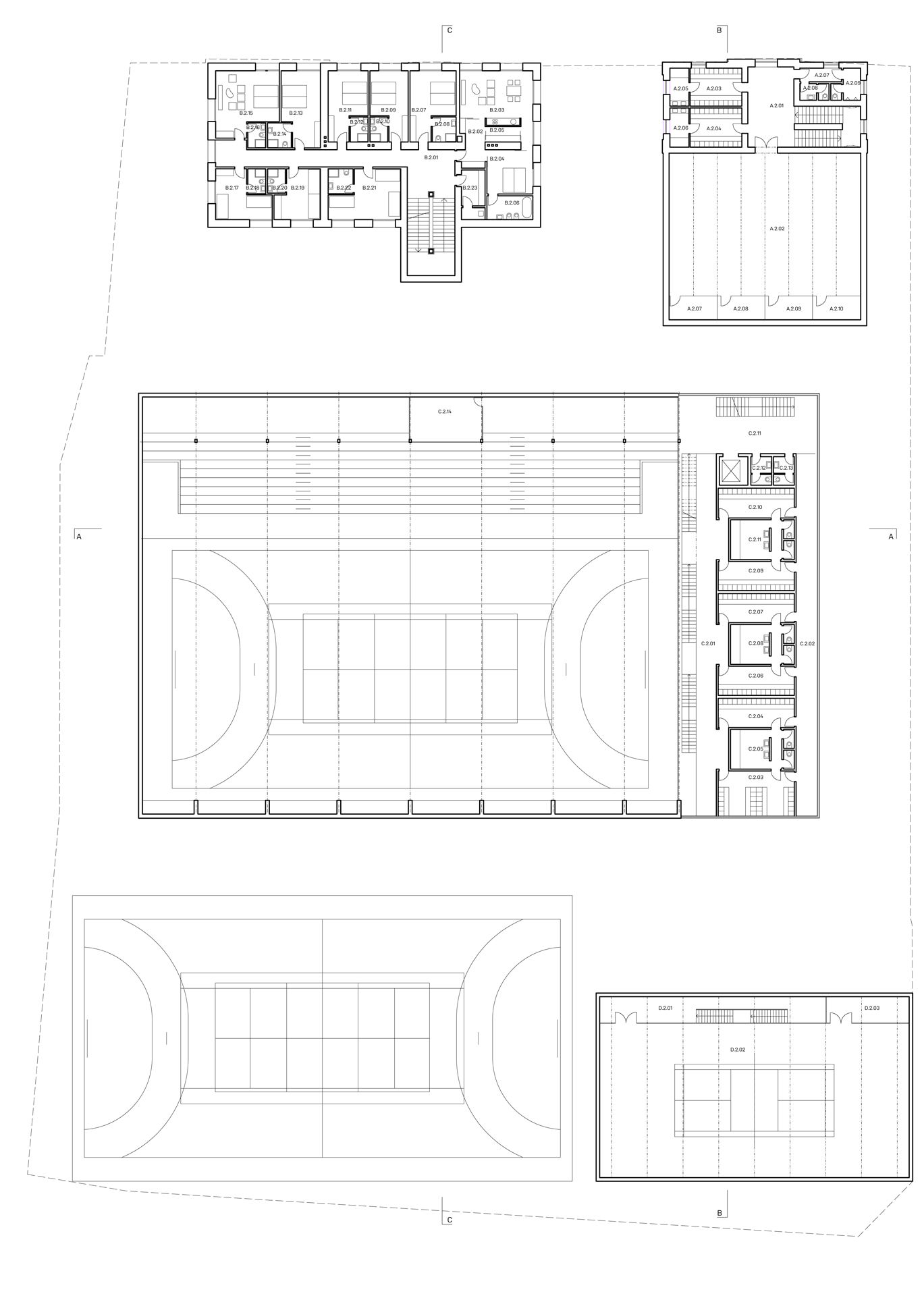
Sportovní areál Sokola v Chrudimi je situováno na významné ose staveb občanské vybavenosti, která plynule stoupá od Resselova náměstí a je ukončena výraznou hmotou objektu bývalé sokolovny a navazujícího Tyršova domu. Přestože má areál takto významnou polohu v kontextu města, působí v současnosti jako bariéra v území. Návrh si klade za cíl především zpřístupnění a napojení areálu na okolní veřejné stavby a prostory. Rozdělení požadovaného programu do jednotlivých samostatných objektů – pavilonů, vytváří porézní městskou strukturu, umožňující návštěvníkům přístup na malé piazzetty mezi jednotlivými objekty z několika klíčových míst navazujícího veřejného prostoru. Jako důležitá součást návrhu je propojení se sousedním Michalským parkem s dominantou kostela svatého Michala. Rozdělení stavebního programu do více samostatných objektů umožňuje navíc požadovanou etapizaci výstavby. Objekt sokolovny a to především jeho západní fasáda do Tyršova náměstí je výraznou dominantou při průhledech z náměstí. Tragédii tohoto původně krásného objektu jsme se rozhodli napravit obnovou části jeho fasády do původního stavu z roku 1892. Sokolovna by měla znovu být „landmarkem“ celého areálu. Skutečnost, že je areál obklopen hned několika školami, předpokládá intenzivní využívání piazzett a navazujícího Michalského parku rovnoměrně po celý den.
spolupráce: Jana Vichorcová, Tomáš Kopecký, Lukáš Komín
spolupráce: Jana Vichorcová, Tomáš Kopecký, Lukáš Komín
×