
Stánky
pro Zelené trhy
realizace 2011 – 2013
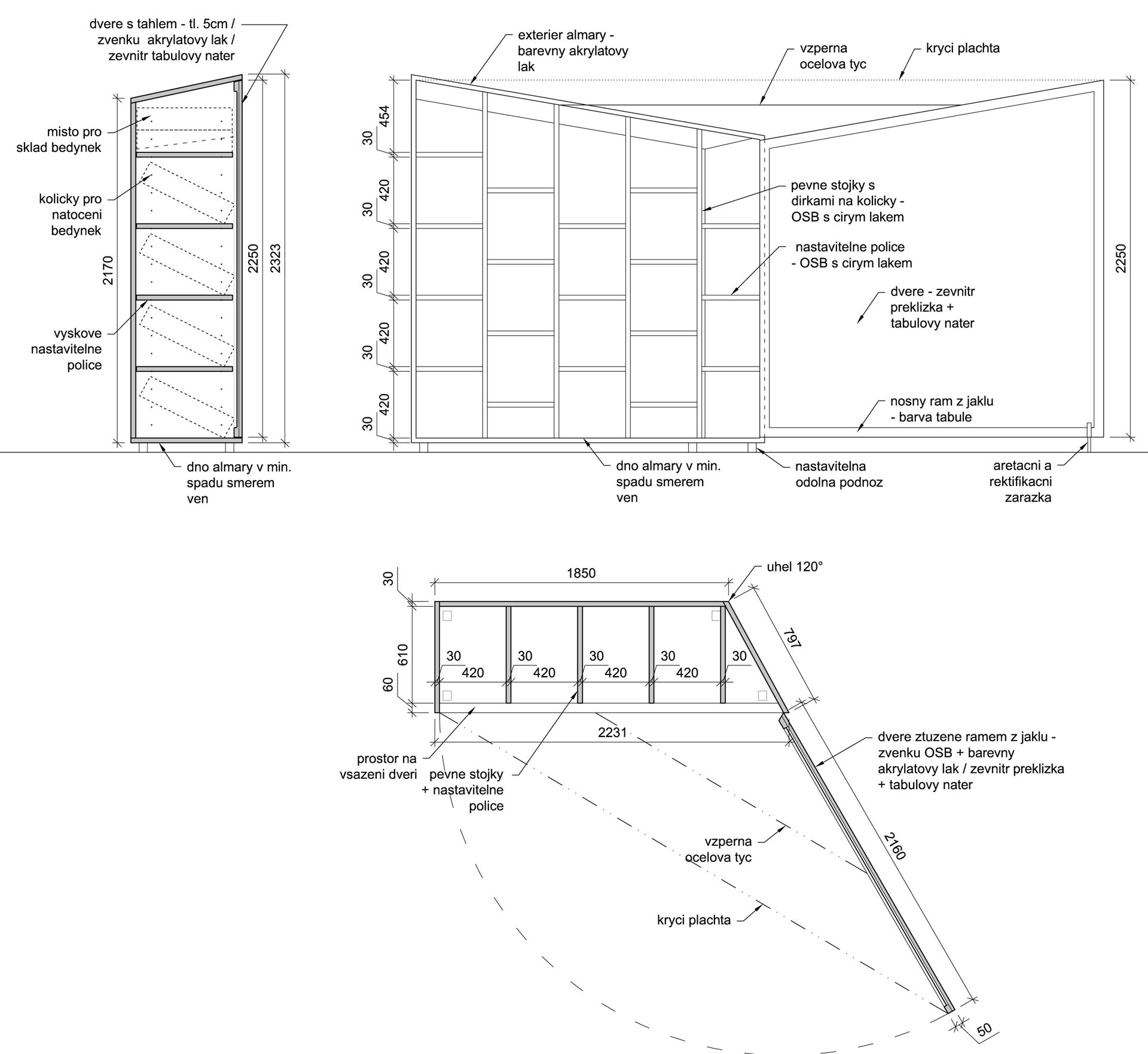
Lokálně pěstované biopotraviny se stávájí v Česku čím dál více populární. Když jsme byli požádáni o návrh stánku pro nový koncept zelených trhů, jedna z našich prvních otázek byla, jak bychom mohli aplikovat osobní vztah zemědělců a jejich produktů na charakter celého trhu, na úroveň mezilidských vztahů. Rekonfigurováním typického obchodního schematu můžeme změnit dodavatele – abstraktní osobu za pultem – ve skutečného pomocníka, přítele, který nám pomáhá vybrat nejlepší zboží. Tato změna může posunout celý obchodní vztah na mnohem kamarádštější úroveň a mohla by být případně způsobem, jak zvýšit tržby. Dalším požadavkem bylo, aby navržený stánek mohl být zavřený, pokud není používán – aby odolal možnému vandalismu. Výsledkem je koncept tzv. „urban Almara“ – stánek, který může být otevřen a uzavřen kdykoliv. Po otevření, zemědělec stojí uprostřed, police se zbožím má na jedné straně a tabuli na straně druhé. Tabule nabízí všem prodejcům stejné podmínky, umožní jim aktualizovat své nabídky v průběhu dne, a ozvláštnit stánek jejich rukopisem. Zelený trh může být složen z různého počtu stánků v různých konfiguracích. Na rozdíl od typických tržišť mohou stánky vytvářet klastry se skrytým úložným prostorem uprostřed.
×