
Návštěvnické centrum Podhůra
soutěž 2013
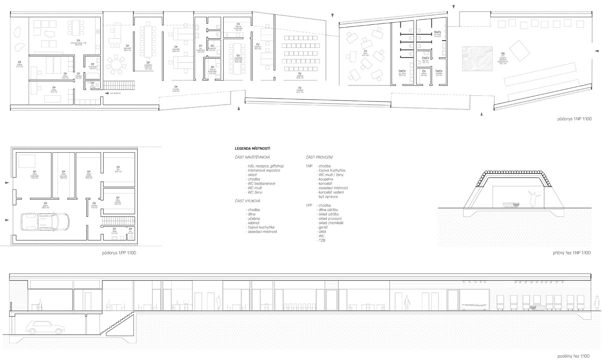
Dle zadání má být objekt „sám o sobě exponátem“ a měl by být „harmonicky vyvážen“. Na základě těchto požadavků zadavatele jsme se rozhodli použít především lokální přírodní materiály a prezentovat je netradičním způsobem. Objekt jsme konstrukčně koncipovali jako kombinaci hrubých dřevěných klád a betonové konstrukce. V interiéru zanechávají klády po odbednění svůj otisk v betonu, v exteriéru tvoří krycí vrstvu obráceného střešního souvrství. Šikmá fasáda zároveň umožňuje návštěvníkům na chvíli se posadit a užít si výhled do krajiny, případně na venkovní expozici. Kámen z nedalekého lomu používáme jako obklad soklu objektu a převážnou většinu podlah v interiéru. Podélná hmota je dle zadání dispozičně členěna na tři hlavní části propojené podélnou chodbou po celé délce jižní fasády. Na hlavní vstup do objektu z východní fasády navazuje hala s vnitřní expozicí, recepcí, prodejem suvenýrů a sociální vybaveností pro veřejnost. Z haly je možné pokračovat dál do vzdělávací části, nebo přímo na jih k venkovním expozicím. Vzdělávací část tvoří místnost pro workshopy, přednášková místnost a potřebné zázemí. Na vzdělávací část dále navazuje část provozní, kterou uzavírá byt správce. Objekt je částečně podsklepen. V suterénu, který využívá klesání terénu v severozápadní části pozemku se nachází veškeré „špinavé“ místnosti provozní části objektu. Vstup do suterénu z exteriéru a vjezd do garáže je ze západní fasády.
×